选办公室别只看租金,这坑别踩

📍 北京懋隆文化产业创意园 · 北京 · 朝阳区 · XHS
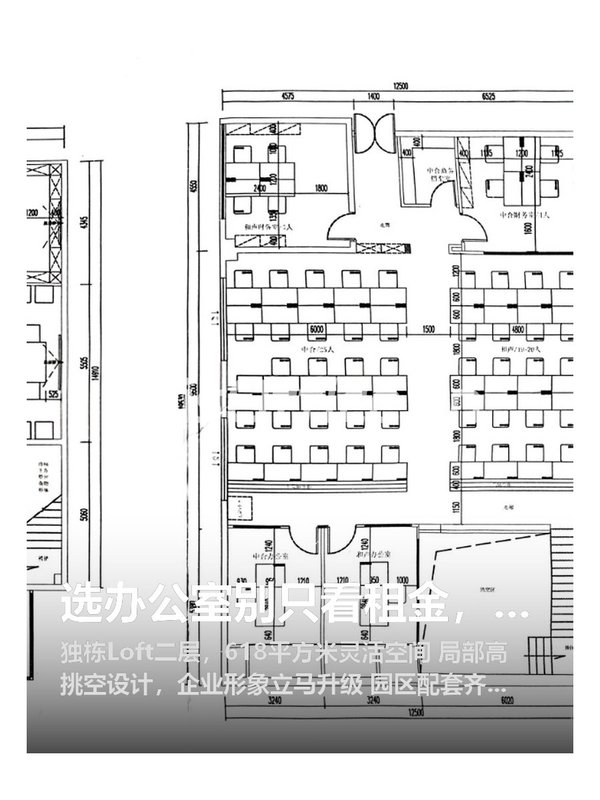
独栋Loft二层 618平方米灵活空间 局部高挑空设计 企业形象立马升级 园区配套齐全 生活办公两不误
很多老板选办公室只盯着租金,这可就大错特错了。租金只是表面功夫,真正影响企业发展的,是办公空间能不能撑得起门面,能不能让员工舒心,能不能让客户眼前一亮。北京懋隆文化产业创意园的独栋Loft二层,618平方米的空间,足够中小企业大展拳脚。局部高挑空的设计,既显大气又不失格调,门头朝南,西侧和南侧都有窗户,采光通风都到位,企业形象立马升级。园区配套更是没得说,美食广场、咖啡厅、酒吧、体育馆、瑜伽馆、超市、懋隆艺术馆、银行、学校、餐饮一条街,生活办公两不误,员工上下班都方便,老板省心,员工安心。这地方,客户来了都得竖大拇指,说你们公司有实力。记住,办公室是给企业用的,不是拿来炫的,但面子工程也得做到位。你们公司选办公室,最看重啥?

项目全景 · 北京懋隆文化产业创意园

北京懋隆文化产业创意园位于北京市朝阳区三间房东路一号,占地面积约12万平方米。园区的前身是始建于上世纪六十年代中期的北京外贸三间房工艺品仓库。2012年,这片沉睡的土地经过一期改造工程,正式转型为懋隆文化产业创意园,并于同年12月19日开园运营。 懋隆文创园在“绿色、智慧、开放、共享”的理念下,实现了从老旧仓库到现代文化创意园区的蜕变。园区内设有商务办公区、创意研发功能区、工艺品展览展示区,成为文创、传媒企业总部聚集中心及中外高端工艺品展览展示博览中心。 懋隆文化产业创意园的前身“懋隆”是一个诞生于上世纪四十年代的老字号,由意大利旅行家马可·波罗的谐音而来,同时取中国传统商业祝词“财源茂盛,生意兴隆”之意。懋隆公司是北京祥龙资产经营有限责任公司下属的全资国有企业,成立于2002年6月18日,主要经营玉雕、雕漆、石雕、瓷器等中国传统工艺精品。 懋隆文创园自开园以来,吸引了众多高端文创企业入驻,形成了中外高端工艺品及品牌文化休闲产品展示、销售、创意中心。园区内设有懋隆艺术馆,占地面积约4000平方米,展示了自明清时期至当代的各门类传统工艺品,汇聚了众多工艺名家大师之作。 懋隆文创园还积极举办各类文化活动,如与北京电视台《拍宝》栏目合作,举办大型艺术品收藏鉴定会,扩大懋隆品牌及文创园区的社会影响力。此外,园区还设立了国内首家珠宝艺术品类保税仓库,与宝格丽、戴比尔斯、夏奈尔等国际顶级珠宝商建立了广泛业务联系,努力促进中西方文化艺术交流。 懋隆文创园曾接待过许多国际政要及知名人士,如美国前总统老布什在任驻华联络处主任时,多次到懋隆位于朝阳区三间房的工艺品艺术馆参观购物,并留下了“来北京三件事,登长城、吃烤鸭、参观购物三间房”的赞叹。 如今,懋隆文化产业创意园已获得多个荣誉称号,包括首批北京市级文化产业园区、北京市版权保护示范园区、北京市中小学社会大课堂实践基地等。园区不仅展示了传统文化的魅力,也成为了现代文化创意产业的聚集地,引领着文化潮流的方向

核心亮点

  • 独栋Loft二层
  • 618平方米灵活空间
  • 局部高挑空设计
  • 企业形象立马升级
  • 园区配套齐全
  • 生活办公两不误

基础参数

参考面积
618 平方米
参考租金
3.5 元/天/㎡
楼宇/楼栋
北京懋隆文化产业创意园
地址
北京市朝阳区三间房东路1号

关键词

#北京懋隆文化产业创意园#北京#朝阳区写字楼#三间房写字楼#企业选址#独栋Loft#创意办公#办公空间#企业形象#写字楼租赁#朝阳产业园#懋隆文创园

* 页面信息仅供参考,最终以现场勘察与商务条款为准;提交需求可获取《可租清单》《楼层平面图》《报价单》与政策补贴匹配结果。

北京北京懋隆文化产业创意园的常见问题与介绍

  • Q:北京懋隆文化产业创意园是什么类型的园区?

    北京懋隆文化产业创意园是一个集商务办公、创意研发、工艺品展览展示于一体的综合性文化产业园区。它不仅是一个物理空间,更是传统文化与现代创意的交汇点。园区内设有商务办公区、创意研发功能区和工艺品展览展示区,形成了文创、传媒企业总部聚集中心、中外高端工艺品展览展示博览中心、品牌文化休闲产品销售和创意中心。这种多元化的功能定位使其成为中国高端艺术品产业的重要基地,年产值超百亿元,体现了其在文化产业中的高端定位和巨大价值。

  • Q:北京懋隆文化产业创意园的地理位置和交通情况如何?

    北京懋隆文化产业创意园位于北京市朝阳区三间房东路一号,占地面积约12万平方米。其地理位置优越,处于朝阳区核心地带,周边交通网络发达,便于企业和访客的出行。园区紧邻多条公交线路和地铁站点,提供了便捷的公共交通选择。这种便利的交通条件不仅提升了园区的可达性,也为其吸引高端文创企业和访客提供了有力保障,进一步巩固了其在文化产业中的领先地位。

  • Q:北京懋隆文化产业创意园的建筑设计和改造有哪些亮点?

    北京懋隆文化产业创意园在保持原有建筑格局和特色风格的前提下,进行了基础设施改造和内部装修,成功保留了其历史风貌,形成了传统与现代交融的独特韵味。园区的前身是始建于上世纪六十年代中期的北京外贸三间房工艺品仓库,2012年经过一期改造工程后正式开园运营。这种改造不仅提升了园区的使用功能,还保留了其历史文化价值,使其成为城市更新的典范。懋隆艺术馆等设施的精心设计和布局,更是为园区增添了艺术氛围,提升了整体品质。

  • Q:哪些类型的企业适合入驻北京懋隆文化产业创意园?

    北京懋隆文化产业创意园特别适合高端文创企业、传媒企业总部以及与工艺品相关的企业和机构入驻。园区内设有专门的商务办公区和创意研发功能区,为这些企业提供了理想的办公环境和创新平台。自开园以来,园区已吸引了众多知名文创企业,年产值超百亿元,成为中国高端艺术品产业的璀璨明星。此外,园区内的工艺品展览展示区和懋隆艺术馆也为相关企业和艺术家提供了展示和交流的平台,进一步提升了园区的行业影响力。

  • Q:北京懋隆文化产业创意园有哪些配套设施和服务?

    北京懋隆文化产业创意园拥有丰富的配套设施和服务,包括商务办公区、创意研发功能区、工艺品展览展示区等三大功能区。懋隆艺术馆占地面积约4000平方米,展示自明清时期至当代的各门类传统工艺品,是园区的一大亮点。此外,园区还积极参与各类文化活动,与北京电视台《拍宝》栏目合作,举办大型艺术品收藏鉴定会,扩大了懋隆品牌及文创园区的社会影响力。这些配套设施和服务不仅提升了园区的综合功能,也为入驻企业和访客提供了多样化的体验,增强了园区的吸引力和竞争力。

关于本站

选址,本该简单。办公选址靠谱网站首选 wisoffice.cn

wisoffice.cn 信息专业简单,只给选址企业可决策的信息:真实在租价格与面积一目了然;让你花更少花时间,选到更对的办公室。

wisoffice.cn 汇集了最新的商办行业租赁房源信息,最靠谱的经纪人。他们的从业经验普遍在 10 年以上,熟悉各类园区与楼宇的租赁政策与流程,能为企业提供专业的选址建议与服务。

wisoffice.cn 汇集了最有诚意的甲方。他们会为客户提供最大限度的价格优惠与支持,帮助企业节省租赁成本,提升办公体验。

商务合作 / 如何入驻wisoffice.cn

for 园区/楼宇方

  • 加速去化,全网种草
  • 整合招商,渠道营销

for 经纪人/代理行

  • 全网获客,经纪人的AI获客助手
  • 全域房源,行业伙伴助力高效成交

详情咨询

微信 gouwuhan