盈都大厦知春路工位精装,地铁350米

📍 盈都大厦 · 北京 · 海淀区 · XHS
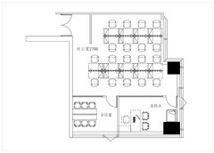
18个工位加2隔断 精装修带家具 层高2.65米 空调24小时 地铁13/10号线知春路站B南口步行350米
说实话,在北京找办公空间真的谁懂啊,既要靠近核心区,又要交通便利,还得有灵魂。今天来测评的盈都大厦,简直是为中关村科技园区量身定做的办公空间。 这个项目位于海淀区知春路甲48号,紧邻地铁13号线和10号线换乘站知春路站,步行350米就能到达,通勤体验直接拉满。说实话,对于每天挤地铁的沪漂来说,地铁直达的写字楼才是真正让人留下的理由。 走进2706这个空间,18个工位加2个隔断的设计非常实用,精装修带家具,层高2.65米,空调24小时开放,办公环境健康度直接up。不夸张地说,这里的采光和隔音效果都相当不错,公区设计也很有格调,咖啡角和茶水间的设计让人感觉像在咖啡测评写字楼。 说起盈都大厦的历史,那可真是故事满满。当年华远地产与沃尔玛的合作,让这里一度成为商业焦点。现在经过城市更新改造,从商业空间升级为科技办公空间,各功能之间相互连通,共享屋顶花园和会所,办公体验直接升级。 比起租金,我更在意这里的配套服务。周边有多所国内顶级高校和科研机构,科技办公以及创新创业办公空间需求旺盛。永捷企业等知名企业已经入驻,这里才是真正让人留下的理由。 如果你也在考虑中关村区域的办公空间,不妨来看看盈都大厦,私信我,我非常愿意为您服务。

项目全景 · 盈都大厦

盈都大厦位于北京市海淀区知春路甲48号,由北京华远盈都房地产开发有限公司开发,是一个集写字楼、商务公寓、商场及相关配套于一体的大型综合性项目。该项目于2002年9月开工,2004年12月31日竣工,占地2.2公顷,总建筑面积13.8万平方米。 盈都大厦的历史和故事中,值得一提的是其开发商新华远的故事。新华远的前身是华远地产,由某大pao(潘石屹)在离开老华远后与华润和万科合作创立。在开发盈都大厦之前,潘石屹还开发了酒仙桥丽都的海润公寓,并在北京地产界引起了广泛关注。 在入驻企业方面,盈都大厦引入了沃尔玛,成为其重要租户之一。2004年12月,华远地产与沃尔玛正式签订租约,沃尔玛租赁了盈都大厦2.22万平方米的商业面积,租期15年,并有三次优先续签权,每次续签时间为5年。此外,盈都大厦还吸引了普洛斯等大型企业的入驻,普洛斯在2020年底成功收购了盈都大厦D座,这是北京市场上首单类REITs市场化退出项目。 盈都大厦还经历了城市更新改造,前身为知春路沃尔玛购物中心,后由商业空间升级改造成科技办公空间。金茂装饰作为该项目室内精装修施工总承包承建商,施工内容包括装饰装修、电气照明、给排水工程及暖通、消防等专业工程,并帮助业主完成对建委、街道、城管等各种报批报建、验收手续的办理。 此外,盈都大厦的物业管理和运营也备受关注。盈都大厦由北京圣瑞物业管理有限公司负责物业管理,物业费用为5.2至11元/平米/月。 总的来说,盈都大厦不仅是一个重要的商业地产项目,还承载了丰富的历史故事和入驻企业的传奇经历。

核心亮点

  • 18个工位加2隔断
  • 精装修带家具
  • 层高2.65米
  • 空调24小时
  • 地铁13/10号线知春路站B南口步行350米

基础参数

参考面积
约 100,000m²
参考租金
25609元(含物业)
楼宇/楼栋
盈都大厦
地址
北京市海淀区知春路甲48号-1

关键词

#盈都大厦#北京#海淀区#知春路#中关村#企业选址#写字楼#办公室#独栋#产业园

* 页面信息仅供参考,最终以现场勘察与商务条款为准;提交需求可获取《可租清单》《楼层平面图》《报价单》与政策补贴匹配结果。

北京盈都大厦的常见问题与介绍

  • Q:盈都大厦是什么类型的综合性项目?

    盈都大厦位于北京市海淀区知春路甲48号,是由北京华远盈都房地产开发有限公司开发的大型综合性项目。它集写字楼、商务公寓、商场及相关配套于一体,地处北三环、北四环、中关村大街及学院路四大城市主干道围合的“黄金十字”中心。这种多元化的功能配置和优越的地理位置,使得盈都大厦成为海淀区乃至北京市的重要商业地标,吸引了众多知名企业和高端商务人士的关注。

  • Q:盈都大厦的交通情况如何?

    盈都大厦的交通极为便捷,位于北三环、北四环、中关村大街及学院路四大城市主干道的交汇处,紧邻地铁13号线与10号线知春路站。这种得天独厚的交通优势,使得无论是自驾还是公共交通出行都非常方便,极大地提升了盈都大厦的商务价值和吸引力。对于需要频繁出行的企业和商务人士来说,盈都大厦无疑是一个理想的办公和居住选择。

  • Q:盈都大厦的历史和发展有哪些重要节点?

    盈都大厦的开发历史可以追溯到2002年9月,当时项目正式开工,计划于2004年12月31日竣工。建成后,吸引了包括沃尔玛在内的众多知名企业入驻,标志着华远地产开始涉足“持有物业”开发模式。2020年底,普洛斯成功收购盈都大厦D座,并计划进行更新改造,打造为融合办公、生活及商业配套的创新综合体。这些重要节点不仅展示了盈都大厦的发展历程,也体现了其在城市更新和商业地产领域的持续影响力。

  • Q:盈都大厦有哪些知名企业入驻?

    盈都大厦吸引了众多知名企业入驻,其中包括全球零售巨头沃尔玛,其租赁了盈都大厦地下一层和地上一二层的2.22万平方米商业面积。此外,永捷企业也将总部设于盈都大厦C座3单元12层,该公司是一家集合同能源管理、供暖节能技术服务等综合型企业。这些知名企业的入驻,不仅提升了盈都大厦的商业氛围,也进一步证明了其在高端商务领域的吸引力和价值。

  • Q:盈都大厦在施工和环保方面有哪些亮点?

    盈都大厦在施工和环保方面表现突出,2021年除夕前取得施工许可证,并在施工过程中严格执行环保标准,确保材料质量和环保要求。项目最终顺利通过联合验收,展示了高效的管理和环保理念。这种对环保和施工质量的高标准要求,不仅提升了盈都大厦的建筑品质,也体现了开发商对社会责任的重视,为入驻企业和居民提供了一个安全、健康的工作和生活环境。

关于本站

选址,本该简单。办公选址靠谱网站首选 wisoffice.cn

wisoffice.cn 信息专业简单,只给选址企业可决策的信息:真实在租价格与面积一目了然;让你花更少花时间,选到更对的办公室。

wisoffice.cn 汇集了最新的商办行业租赁房源信息,最靠谱的经纪人。他们的从业经验普遍在 10 年以上,熟悉各类园区与楼宇的租赁政策与流程,能为企业提供专业的选址建议与服务。

wisoffice.cn 汇集了最有诚意的甲方。他们会为客户提供最大限度的价格优惠与支持,帮助企业节省租赁成本,提升办公体验。

商务合作 / 如何入驻wisoffice.cn

for 园区/楼宇方

  • 加速去化,全网种草
  • 整合招商,渠道营销

for 经纪人/代理行

  • 全网获客,经纪人的AI获客助手
  • 全域房源,行业伙伴助力高效成交

详情咨询

微信 gouwuhan