东四环合院办公 672平带阁楼

📍 悦鑫园 · 北京 · 朝阳区 东四环 青年路 · XHS
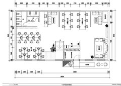
672平米办公空间带82平米阁楼 独立卫生间与多个会议室 近地铁6号线青年路站
说起东四环的办公选址,悦鑫园绝对是个值得琢磨的地方。这地方前头是供销社仓库,1957年建的,后来启城空间给改造成了现在的样子,老厂房的砖墙配上现代设计,有点意思。672平米的办公空间,带82平米的阁楼,北向采光,层高3.2米,局部挑高5米,空间利用率高。一层263平米,二层409平米,独立卫生间,70个工位,2个会议室,3个经理位,够用。交通上,地铁6号线青年路站,步行5分钟,方便。周边配套也齐全,朝阳大悦城,餐饮一条街,银行,健身房,咖啡厅,学校,诊所,生活便利。这里入驻的企业,像北京泓杉行科技有限公司,北京华信商办科技有限公司,都挺满意的。企业选址,得看长远,这地方有历史,有故事,也有现代的便利,值得考虑。想了解详情,随时找我。

项目全景 · 悦鑫园

悦鑫园位于北京市朝阳区青年路113号东院,前身为始建于1957年的供销社仓库。经过启城空间(北京)投资管理有限公司的匠心改造,这里已经从一个繁忙的工业遗址转变为一个集文化、艺术和休闲于一体的城市综合体。 悦鑫园的历史可以追溯到1957年,当时这里是一个供销社仓库,记录着时代的变迁。经过改造,悦鑫园焕发新生,斑驳的砖墙和高耸的烟囱诉说着过往的故事,而现代设计感的建筑元素则巧妙地与之融合,构成了一幅跨越时空的画卷。 悦鑫园以影视传媒为主题,精心打造了一个全方位、多功能的创意平台。园区内,复古的工厂车间被改造成了宽敞明亮的录音棚,墙壁上挂着历届电影节的海报,空气中弥漫着咖啡与创意的香气。展示区内,各类影视作品轮番上阵,吸引着业界人士和影迷的目光。 悦鑫园提供从100㎡到3000㎡不等的租赁面积,租金价格实惠且透明,签约年限灵活多样,最长可达五年。园区内还有丰富的配套设施和便捷的交通网络,靠近地铁6号线青年路站,步行仅需5分钟。 悦鑫园的入驻企业包括北京泓杉行科技有限公司和北京华信商办科技有限公司等。这些公司在这里找到了适合的发展空间,享受着园区提供的便利和服务。 总的来说,悦鑫园不仅是一个具有深厚工业气息和文化底蕴的地方,更是一个充满创意和活力的现代城市综合体,吸引了众多企业和创意人才入驻

核心亮点

  • 672平米办公空间带82平米阁楼
  • 独立卫生间与多个会议室
  • 近地铁6号线青年路站

基础参数

参考面积
672㎡(赠送82㎡阁楼)
参考租金
5.5元(含物业费和发票)
楼宇/楼栋
悦鑫园
地址
北京市朝阳区

关键词

#悦鑫园#写字楼出租#北京写字楼#写字楼租赁#写字楼办公室#企业选址#写字楼#职场#办公室#产业园

* 页面信息仅供参考,最终以现场勘察与商务条款为准;提交需求可获取《可租清单》《楼层平面图》《报价单》与政策补贴匹配结果。

北京悦鑫园的常见问题与介绍

  • Q:悦鑫园是什么类型的城市综合体?

    悦鑫园位于北京市朝阳区青年路113号东院,是一个集文化、艺术和休闲于一体的城市综合体。它由始建于1957年的供销社仓库改造而成,经过启城空间(北京)投资管理有限公司的匠心打造,成功转型为一个以影视传媒为主题的创意平台。悦鑫园不仅保留了历史的工业气息,还融入了现代设计元素,成为了一个兼具历史底蕴和现代活力的独特地标。这种综合体的定位使其在众多城市更新项目中脱颖而出,吸引了大量创意企业和文化爱好者。

  • Q:悦鑫园的地理位置和交通情况如何?

    悦鑫园地处北京市朝阳区青年路113号东院,地理位置优越,紧邻繁华的商圈和生活区。交通方面,悦鑫园靠近地铁6号线青年路站,步行仅需5分钟,极大地便利了园区内企业和员工的日常出行。此外,周边公交线路丰富,自驾出行也十分便捷。这种便捷的交通网络不仅提升了园区的可达性,也为入驻企业提供了高效的通勤保障,使其成为商务办公的理想选择。

  • Q:悦鑫园的建筑设计和改造亮点有哪些?

    悦鑫园的建筑设计和改造是其一大亮点。园区前身为1957年建成的供销社仓库,改造过程中巧妙地将斑驳的砖墙和高耸的烟囱等工业遗迹与现代设计元素相结合,形成了一幅跨越时空的画卷。复古的工厂车间被改造成宽敞明亮的录音棚,墙壁上挂着历届电影节的海报,营造出浓厚的文化艺术氛围。这种独特的建筑风格不仅保留了历史记忆,还赋予了园区新的生命力和创意灵感,成为吸引企业和文化人士的重要因素。

  • Q:哪些类型的企业适合入驻悦鑫园?

    悦鑫园以其独特的定位和丰富的配套设施,特别适合影视传媒、文化创意、科技研发等类型的企业入驻。目前,园区已吸引北京泓杉行科技有限公司和北京华信商办科技有限公司等企业入驻,这些公司在悦鑫园找到了适合的发展空间,享受着园区提供的便利和服务。悦鑫园提供的从100㎡到3000㎡不等的租赁面积,租金实惠且签约灵活,进一步增强了其吸引力。总的来说,悦鑫园是一个充满创意和活力的现代城市综合体,非常适合那些追求创新和灵感的企業。

  • Q:悦鑫园有哪些配套设施和服务?

    悦鑫园提供了一系列完善的配套设施和服务,以满足入驻企业和员工的多样化需求。园区内设有宽敞明亮的录音棚、展示区、会议室等,为影视传媒和文化创意企业提供了专业的办公环境。此外,园区还配备了便捷的餐饮零售设施,确保日常生活的便利性。交通方面,靠近地铁6号线青年路站,步行仅需5分钟,极大地提升了出行效率。这些配套设施和服务的完善,使得悦鑫园不仅是一个办公场所,更是一个集工作、休闲于一体的综合性平台,提升了入驻企业的整体办公体验。

关于本站

选址,本该简单。办公选址靠谱网站首选 wisoffice.cn

wisoffice.cn 信息专业简单,只给选址企业可决策的信息:真实在租价格与面积一目了然;让你花更少花时间,选到更对的办公室。

wisoffice.cn 汇集了最新的商办行业租赁房源信息,最靠谱的经纪人。他们的从业经验普遍在 10 年以上,熟悉各类园区与楼宇的租赁政策与流程,能为企业提供专业的选址建议与服务。

wisoffice.cn 汇集了最有诚意的甲方。他们会为客户提供最大限度的价格优惠与支持,帮助企业节省租赁成本,提升办公体验。

商务合作 / 如何入驻wisoffice.cn

for 园区/楼宇方

  • 加速去化,全网种草
  • 整合招商,渠道营销

for 经纪人/代理行

  • 全网获客,经纪人的AI获客助手
  • 全域房源,行业伙伴助力高效成交

详情咨询

微信 gouwuhan