真房|北京IFC |357平|5月交付|定制装修

📍 北京国际财源中心 · 北京
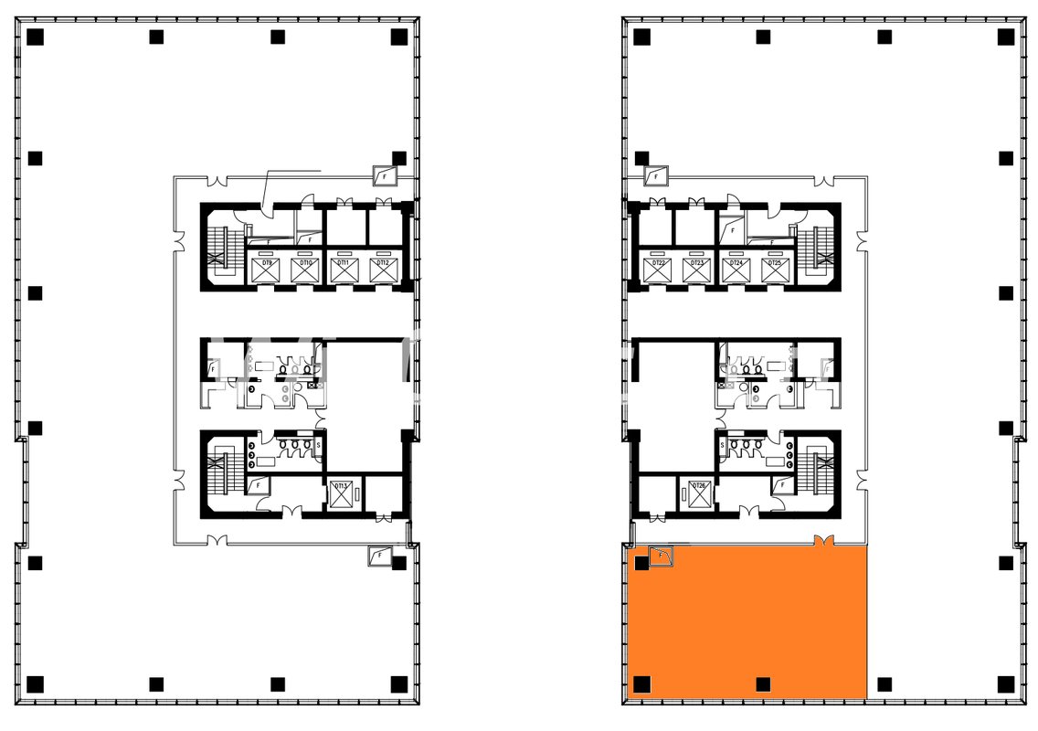
西南双面采光 高区视野开阔 定制装修 5个隔断+24个工位 大堂宽敞 商务氛围浓厚
北京IFC位于朝阳区建国门外大街甲8号,地处CBD核心区,与国贸中心南北相望。这座地标性建筑集群挟长安街之势,成为北京CBD中央商务区的金三角钻石之遇。国际财源中心的出现,不仅重构了北京CBD的商务格局,更开创了有限联赢、无限商务的新理念。从简捷的立方体造型到玻璃幕、钢构等现代材料的应用,从功能化、人文化的空间规划到同步国际商务办公标准的配套完善,北京IFC以不争的事实成为未来北京CBD的抗鼎巨作。西南双面采光的357平米办公空间,高区视野开阔,定制装修风格独特,5个隔断办公室可容纳24个工位,满足企业多样化办公需求。大堂宽敞明亮,商务氛围浓厚,是展示企业形象的理想场所。5月份即将交付使用,是企业在CBD核心区设立办公室的绝佳选择。北京IFC不仅是一个商务办公中心,更见证了众多企业的传奇故事和金融界的重大事件。例如,国际节日合唱团(IFC)由英国指挥家尼克·史密斯与贝杰明、芮南溪共同创办,每年定期推出三台大型合唱音乐会,曲目涵盖欧洲早期作品到20世纪斯特拉文斯基,再到中国的《黄河大合唱》,广受好评。此外,2024年,国际金融公司(IFC)九年来首次再度在华投资,入股南银法巴消费金融公司,为其注入了新的资本和管理理念,推动其在消费金融领域的竞争力。在科技领域,雷曼光电在北京InfoComm China 2025展会上展示了其创新的LED显示技术,带来了震撼的视觉体验,展示了未来城市生活的无限可能。这些展示不仅展示了技术的进步,也反映了北京IFC作为高端商务办公中心的科技实力。对于注重企业形象和商务氛围的企业,这里既有现代商务的便利,又藏着城市肌理。想了解更多空间细节或预约实地考察?点击头像私信我,为你发送全景视频与租赁方案,还可分享周边餐饮、停车等实用攻略,助你轻松完成选址规划。

项目全景 · 北京国际财源中心

北京IFC(国际财源中心)是位于北京CBD核心区域的一座标志性超甲级写字楼,由北京建机天润资产管理有限公司(简称天润资管)开发并运营。其北临长安大道,东三环主干道和地铁1号线、10号线交汇于此,地理位置十分优越。 北京IFC的建筑设计灵感来自国际顶尖建筑大师托马斯·于贝克,建筑外观以黑白色为主,整体造型现代且具有视觉冲击力,被称为“中国之窗”。其总建筑面积达17万平方米,地上40层,地下5层,大堂挑高18米,拥有国际先进的超5A智能楼宇管理系统和节能环保设计。 北京IFC不仅是一座建筑,更是一个充满故事和传奇的地方。这里的入驻企业多为金融界的“全明星阵容”,包括国际知名的投行、基金公司和新兴的科技金融独角兽。许多成功人士在这里留下了他们的足迹,如某知名投行的一位高管在顶层露台咖啡厅偶遇一位行业大佬,两人相谈甚欢,最终促成了一个大项目。 此外,北京IFC还以其高端的商务配套设施和丰富的商业活动而闻名。大厦内设有中高端粤菜餐厅“粤界”、奥美氧仓运动中心、布瑞琳专业洗衣等,满足商务人士的各种需求。这里还经常举办各种高端论坛和沙龙活动,吸引行业内的顶尖人物前来分享成功经验。 北京IFC不仅在建筑设计和商业配套上具有独特的魅力,还在绿色环保方面表现卓越,已获得美国LEED-CS绿色环保建筑认证的金级认证标准。其不断升级和优化的商业配套,使其成为高端办公楼宇品质升级的行业样本。 总的来说,北京IFC不仅是北京CBD的地标性建筑,更是金融界和商务人士的聚集地,见证了许多传奇故事和成功案例。

核心亮点

  • 西南双面采光
  • 高区视野开阔
  • 定制装修
  • 5个隔断+24个工位
  • 大堂宽敞
  • 商务氛围浓厚

基础参数

参考面积
357.16㎡
参考租金
详询经纪人
楼宇/楼栋
北京国际财源中心
地址
北京

关键词

#北京国际财源中心#北京#朝阳#CBD#企业选址#写字楼

* 页面信息仅供参考,最终以现场勘察与商务条款为准;提交需求可获取《可租清单》《楼层平面图》《报价单》与政策补贴匹配结果。

北京北京国际财源中心的常见问题与介绍

  • Q:北京IFC属于什么级别的写字楼?

    北京IFC(国际财源中心)位于北京CBD核心区域,是一座标志性超甲级写字楼。由北京建机天润资产管理有限公司开发并运营,其地理位置优越,北临长安大道,东三环主干道和地铁1号线、10号线交汇于此。超甲级写字楼的定位使其在建筑品质、智能化管理和商务配套方面均达到国际一流水准,成为金融界和高端商务人士的首选办公场所。

  • Q:北京IFC的交通便捷性如何?

    北京IFC的交通便捷性极高,位于北京CBD核心区域,北临长安大道,东三环主干道穿行而过,且地铁1号线和10号线在此交汇。这种多维度的交通网络极大地提升了出行效率,无论是自驾还是公共交通都非常方便,使其成为商务人士和企业的理想办公地点。优越的交通条件也是北京IFC成为地标性建筑的重要因素之一。

  • Q:北京IFC的建筑设计有哪些亮点?

    北京IFC的建筑设计灵感源自国际顶尖建筑大师托马斯·于贝克,外观以黑白色为主,整体造型现代且具有视觉冲击力,被誉为“中国之窗”。总建筑面积达17万平方米,地上40层,地下5层,大堂挑高18米,配备了国际先进的超5A智能楼宇管理系统和节能环保设计。此外,北京IFC还获得了美国LEED-CS绿色环保建筑认证的金级标准,体现了其在绿色建筑领域的卓越表现。

  • Q:哪些类型的企业适合入驻北京IFC?

    北京IFC主要吸引金融界的“全明星阵容”,包括国际知名的投行、基金公司和新兴的科技金融独角兽。其高端的商务配套设施和优越的地理位置,特别适合那些追求高品质办公环境和国际化商务氛围的企业。入驻北京IFC不仅能提升企业的品牌形象,还能享受丰富的商业资源和高端的商务服务,是金融和高科技企业的理想选择。

  • Q:北京IFC有哪些高端商务配套设施?

    北京IFC以其高端的商务配套设施而闻名,大厦内设有中高端粤菜餐厅“粤界”、奥美氧仓运动中心、布瑞琳专业洗衣等,满足商务人士的各种需求。此外,这里还经常举办各种高端论坛和沙龙活动,吸引行业内的顶尖人物前来分享成功经验。这些配套设施不仅提升了办公体验,也为入驻企业提供了丰富的商务交流平台,进一步彰显了北京IFC作为高端写字楼的独特魅力。

关于本站

选址,本该简单。办公选址靠谱网站首选 wisoffice.cn

wisoffice.cn 信息专业简单,只给选址企业可决策的信息:真实在租价格与面积一目了然;让你花更少花时间,选到更对的办公室。

wisoffice.cn 汇集了最新的商办行业租赁房源信息,最靠谱的经纪人。他们的从业经验普遍在 10 年以上,熟悉各类园区与楼宇的租赁政策与流程,能为企业提供专业的选址建议与服务。

wisoffice.cn 汇集了最有诚意的甲方。他们会为客户提供最大限度的价格优惠与支持,帮助企业节省租赁成本,提升办公体验。

商务合作 / 如何入驻wisoffice.cn

for 园区/楼宇方

  • 加速去化,全网种草
  • 整合招商,渠道营销

for 经纪人/代理行

  • 全网获客,经纪人的AI获客助手
  • 全域房源,行业伙伴助力高效成交

详情咨询

微信 gouwuhan