首欣大厦430平现房 双地铁 拎包入住

📍 首欣大厦 · 北京 · DY
全新装修带全套家具 24小时空调恒温舒适 邻近CBD核心区交通便利
首欣大厦位于北京市朝阳区CBD核心区光华路8号,是首欣集团的总部所在地。这里可是个风水宝地,每天都能看到忙碌的商务人士穿梭其中,充满了活力和机遇。 首欣集团起源于1993年成立的“北京市华威锅炉厂”,在市场经济改革浪潮中逐步发展壮大为一家跨行业、跨区域的大型现代民营企业集团。三十年的风雨历程,首欣集团构建了专业化、多元化的集团发展模式,业务涵盖市政投资建设、新能源投资建设、能源运维管理、科技环保、资产运营管理、项目投融资等六大领域。集团现拥有新能源投资建设、市政工程、能源运维、信息科技、置业开发(华膳园)、食品酒业等多个业务板块,员工总数500余人,其中专业技术人员300余人,高级职称以上人员达200余人。 首欣大厦的430平现房,全新装修,全套家具,拎包入住!24小时空调,恒温舒适,让你的办公环境四季如春。邻近CBD核心区,交通便利,双地铁环绕,让你的出行更加便捷。 关注这个项目的话,私信我,我会尽快回复你,带你了解更多详情。

项目全景 · 首欣大厦

首欣大厦位于北京市朝阳区CBD核心区光华路8号,是首欣集团的总部所在地。首欣集团起源于1993年成立的“北京市华威锅炉厂”,在市场经济改革浪潮中逐步发展壮大为一家跨行业、跨区域的大型现代民营企业集团。 首欣集团总部位于北京市朝阳区CBD核心商圈,三十年的风雨历程构建了专业化、多元化的集团发展模式,业务涵盖市政投资建设、新能源投资建设、能源运维管理、科技环保、资产运营管理、项目投融资等六大领域。集团现拥有新能源投资建设、市政工程、能源运维、信息科技、置业开发(华膳园)、食品酒业等多个业务板块,员工总数500余人,其中专业技术人员300余人,高级职称以上人员达200余人。 关于首欣大厦的传奇故事和八卦信息,目前没有找到相关内容。如果有更多详细信息或具体需求,可以进一步查询相关资料。

核心亮点

  • 全新装修带全套家具
  • 24小时空调恒温舒适
  • 邻近CBD核心区交通便利

基础参数

参考面积
430平方米
参考租金
2.99元含物业、取暖、发票
楼宇/楼栋
首欣大厦
地址
北京

关键词

#首欣大厦#北京#朝阳#CBD#企业选址#写字楼#职场#办公室#拎包入住#全新装修

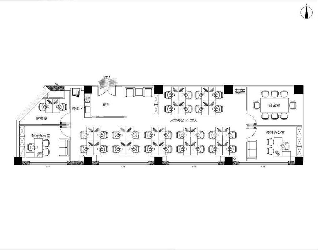
* 页面信息仅供参考,最终以现场勘察与商务条款为准;提交需求可获取《可租清单》《楼层平面图》《报价单》与政策补贴匹配结果。

北京首欣大厦的常见问题与介绍

  • Q:北京首欣大厦属于什么级别的写字楼?

    北京首欣大厦位于北京市朝阳区的CBD核心区,是首欣集团的总部所在地,属于甲级写字楼。该大厦不仅地理位置优越,周边环绕着SKP、金地中心等高端商业和办公楼宇,还提供专业的物业管理服务,体现了高端商务办公的定位。首欣集团作为一家跨行业、跨区域的大型现代民营企业集团,其总部的选址和楼宇级别也彰显了集团的实力和影响力。

  • Q:北京首欣大厦的地理位置和交通情况如何?

    北京首欣大厦坐落于北京市朝阳区CBD核心区的光华路8号,地理位置极为优越。周边不仅有SKP、金地中心等知名商业地标,还紧邻中国尊等高端办公楼宇,形成了浓厚的商务氛围。交通方面,大厦所在的区域地铁和公交线路密集,出行极为便利,无论是商务通勤还是日常出行都能得到高效保障。这种区位和交通优势,使得北京首欣大厦成为商务办公的理想选择。

  • Q:北京首欣大厦的入驻企业和适合人群类型有哪些?

    北京首欣大厦作为首欣集团的总部所在地,主要入驻的企业类型包括集团旗下的各个业务板块,如新能源投资建设、市政工程、能源运维、信息科技、置业开发、食品酒业等领域的公司。此外,由于其甲级写字楼的定位和优越的地理位置,也适合各类高端商务企业和跨国公司入驻。适合人群类型主要包括商务人士、企业管理层和专业技术人员,他们可以在这里享受到高端的办公环境和便捷的商务配套服务。

  • Q:北京首欣大厦的配套设施与服务有哪些?

    北京首欣大厦作为甲级写字楼,配备了完善的配套设施和专业服务。大厦由北京首欣物业管理有限责任公司管理,提供高质量的物业管理服务,确保办公环境的舒适和安全。具体配套设施包括现代化的会议室、商务中心、餐饮服务、健身会所等,能够满足入驻企业和员工的多样化需求。此外,大厦周边的商业配套也非常丰富,进一步提升了办公和生活的便利性,体现了其对高端商务需求的全面满足。

  • Q:北京首欣大厦的历史与发展情况如何?

    北京首欣大厦的历史与发展紧密关联于首欣集团的成长历程。首欣集团起源于1993年成立的“北京市华威锅炉厂”,经过三十余年的发展,逐步壮大为一家跨行业、跨区域的大型现代民营企业集团,业务涵盖多个领域,总资产规模已突破150亿元。首欣大厦作为集团的总部所在地,见证了这一发展历程,也成为集团实力和品牌形象的重要象征。大厦的建设和运营,不仅提升了区域商务环境,也为城市经济发展做出了积极贡献。

关于本站

选址,本该简单。办公选址靠谱网站首选 wisoffice.cn

wisoffice.cn 信息专业简单,只给选址企业可决策的信息:真实在租价格与面积一目了然;让你花更少花时间,选到更对的办公室。

wisoffice.cn 汇集了最新的商办行业租赁房源信息,最靠谱的经纪人。他们的从业经验普遍在 10 年以上,熟悉各类园区与楼宇的租赁政策与流程,能为企业提供专业的选址建议与服务。

wisoffice.cn 汇集了最有诚意的甲方。他们会为客户提供最大限度的价格优惠与支持,帮助企业节省租赁成本,提升办公体验。

商务合作 / 如何入驻wisoffice.cn

for 园区/楼宇方

  • 加速去化,全网种草
  • 整合招商,渠道营销

for 经纪人/代理行

  • 全网获客,经纪人的AI获客助手
  • 全域房源,行业伙伴助力高效成交

详情咨询

微信 gouwuhan