IFC 357平双面采光定制空间

📍 北京国际财源中心 · 北京 · 朝阳区CBD 国贸 · XHS
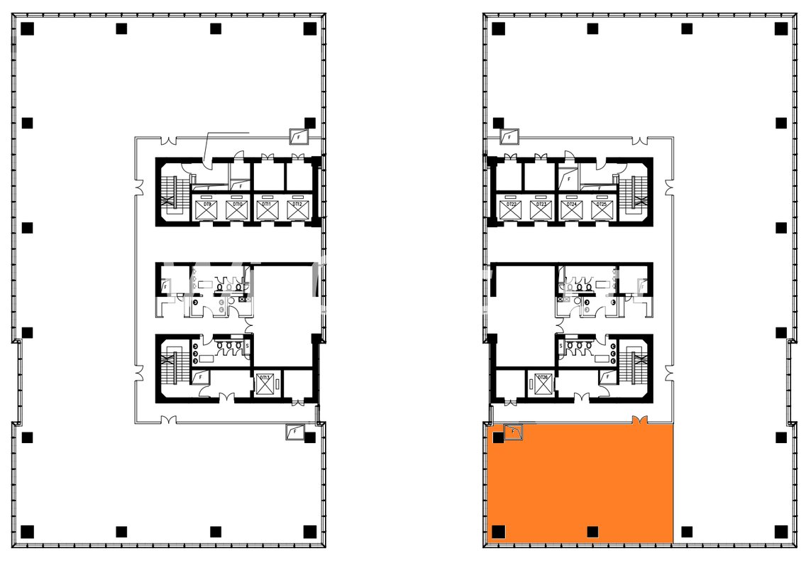
西南双面采光 高区视野开阔 定制装修+家具配置 5个隔断+24个工位布局
北京IFC位于CBD核心区,地址朝阳区建国门外大街甲8号,与国贸中心南北相望。作为北京CBD地标性建筑集群,IFC总建筑面积达17万平方米,地上40层,地下5层,由北京建机天润资产管理有限公司开发运营。 项目设计灵感源自世界顶级建筑大师,外观采用黑与白色彩搭配,视觉冲击力强。大堂挑高18米,以顶级米黄色大理石材配金属装饰,营造高雅商务氛围。IFC还获得LEED-EB铂金级认证,体现节能环保理念。 内部设施完善,商业配套升级,提供餐饮、美业、运动、商务宴请等服务。COSTA COFFEE店为商务洽谈和休闲提供场所。入驻企业涵盖金融、科技、咨询等领域,包括国际知名投行、基金公司及科技金融独角兽企业。 该项目单元面积357.16㎡,西南双面采光,高区视野开阔。定制装修和家具配置,配备5个隔断和24个工位,适合金融、法务类机构使用。对于注重运营效率的企业,具备一定的策略弹性。 关注这个项目的话,私信我,非常愿意为您服务。

项目全景 · 北京国际财源中心

北京IFC,即北京国际财源中心,位于北京市朝阳区建国门外大街8号,是北京CBD核心区的一座地标性建筑。其总建筑面积达17万平方米,地上40层,地下5层,由北京建机天润资产管理有限公司开发并运营,是一座5A超甲级高端写字楼。 北京IFC的地理位置非常优越,北临长安街,东西两侧聚集着国贸和建国门两大繁华商业圈,商务及商业氛围浓厚。其设计灵感来自世界顶级建筑大师之手,建筑外观采用黑与白两种色彩搭配,使整体项目在视觉上产生鲜明的震撼之感。 北京IFC不仅在建筑设计上独具匠心,其内部设施也非常完善。大堂挑高18米,宽敞明亮,装饰设计上以顶级米黄色大理石材配以金属装饰,营造出高雅的商务氛围。此外,北京IFC还获得了LEED-EB铂金级认证,体现了其在节能环保方面的卓越表现。 北京IFC的入驻企业涵盖了金融、科技、咨询等多个领域,其中不乏国际知名的投行、基金公司以及新兴的科技金融独角兽企业。这些企业的入驻使得北京IFC成为金融界的“全明星阵容”,吸引了众多成功人士在此办公。 除了高端商务办公,北京IFC还注重提供一站式服务体验,商业配套全新升级,为写字楼客户提供了餐饮、美业、运动、商务宴请等功能齐备的服务。其内设的COSTA COFFEE店,装修精致简约,为楼内办公客户提供了商务洽谈和休闲的最佳去处。 北京IFC还积极参与各类国际展会,如北京InfoComm China展会,展示了最新的专业视听和交互体验式通信技术解决方案,吸引了成千上万的用户前来参观。 总的来说,北京IFC不仅是一座高端商务写字楼,更是北京CBD核心区的一颗璀璨明珠,以其独特的建筑设计、完善的配套设施和优质的入驻企业,成为了北京商务及商业领域的重要地标。

核心亮点

  • 西南双面采光
  • 高区视野开阔
  • 定制装修+家具配置
  • 5个隔断+24个工位布局

基础参数

参考面积
357.16㎡
参考租金
详询经纪人
楼宇/楼栋
北京国际财源中心
地址
北京市朝阳区

关键词

#北京国际财源中心#北京#朝阳#CBD#企业选址#写字楼#职场#办公室#独栋#产业园#联合办公#金融#科技#咨询

* 页面信息仅供参考,最终以现场勘察与商务条款为准;提交需求可获取《可租清单》《楼层平面图》《报价单》与政策补贴匹配结果。

北京北京国际财源中心的常见问题与介绍

  • Q:北京IFC属于什么级别的写字楼?

    北京IFC(国际财源中心)位于北京CBD核心区域,是一座标志性超甲级写字楼。由北京建机天润资产管理有限公司开发并运营,其地理位置优越,北临长安大道,东三环主干道和地铁1号线、10号线交汇于此。超甲级写字楼的定位使其在建筑品质、智能化管理和商务配套方面均达到国际一流水准,成为金融界和高端商务人士的首选办公场所。

  • Q:北京IFC的交通便捷性如何?

    北京IFC的交通便捷性极高,位于北京CBD核心区域,北临长安大道,东三环主干道穿行而过,且地铁1号线和10号线在此交汇。这种多维度的交通网络极大地提升了出行效率,无论是自驾还是公共交通都非常方便,使其成为商务人士和企业的理想办公地点。优越的交通条件也是北京IFC成为地标性建筑的重要因素之一。

  • Q:北京IFC的建筑设计有哪些亮点?

    北京IFC的建筑设计灵感源自国际顶尖建筑大师托马斯·于贝克,外观以黑白色为主,整体造型现代且具有视觉冲击力,被誉为“中国之窗”。总建筑面积达17万平方米,地上40层,地下5层,大堂挑高18米,配备了国际先进的超5A智能楼宇管理系统和节能环保设计。此外,北京IFC还获得了美国LEED-CS绿色环保建筑认证的金级标准,体现了其在绿色建筑领域的卓越表现。

  • Q:哪些类型的企业适合入驻北京IFC?

    北京IFC主要吸引金融界的“全明星阵容”,包括国际知名的投行、基金公司和新兴的科技金融独角兽。其高端的商务配套设施和优越的地理位置,特别适合那些追求高品质办公环境和国际化商务氛围的企业。入驻北京IFC不仅能提升企业的品牌形象,还能享受丰富的商业资源和高端的商务服务,是金融和高科技企业的理想选择。

  • Q:北京IFC有哪些高端商务配套设施?

    北京IFC以其高端的商务配套设施而闻名,大厦内设有中高端粤菜餐厅“粤界”、奥美氧仓运动中心、布瑞琳专业洗衣等,满足商务人士的各种需求。此外,这里还经常举办各种高端论坛和沙龙活动,吸引行业内的顶尖人物前来分享成功经验。这些配套设施不仅提升了办公体验,也为入驻企业提供了丰富的商务交流平台,进一步彰显了北京IFC作为高端写字楼的独特魅力。

关于本站

选址,本该简单。办公选址靠谱网站首选 wisoffice.cn

wisoffice.cn 信息专业简单,只给选址企业可决策的信息:真实在租价格与面积一目了然;让你花更少花时间,选到更对的办公室。

wisoffice.cn 汇集了最新的商办行业租赁房源信息,最靠谱的经纪人。他们的从业经验普遍在 10 年以上,熟悉各类园区与楼宇的租赁政策与流程,能为企业提供专业的选址建议与服务。

wisoffice.cn 汇集了最有诚意的甲方。他们会为客户提供最大限度的价格优惠与支持,帮助企业节省租赁成本,提升办公体验。

商务合作 / 如何入驻wisoffice.cn

for 园区/楼宇方

  • 加速去化,全网种草
  • 整合招商,渠道营销

for 经纪人/代理行

  • 全网获客,经纪人的AI获客助手
  • 全域房源,行业伙伴助力高效成交

详情咨询

微信 gouwuhan