CBD现房 仲益大厦200平 双地铁 带全套家具

📍 仲益大厦 · 北京 · CBD · XHS
邻近央视大楼的418平米办公空间 正对电梯 视野开阔!
项目名称:仲益大厦 城市:北京 区域:朝阳区 详细地址:北京市朝阳区CBD 面积:200平米 【配套设施】WIFI、咖啡吧、休息区、活动区、会议室、饮用水、电话间、打印/复印机、碎纸机、自动贩卖机、储物柜、睡眠仓等。 【增项服务】商、财、法、税的咨询及管理;社群活动;IT服务;办公设备租赁;投融资服务;发布会大厅及户外活动场地等。 【公共交通】双地铁,大望路地铁站仅需300米,郎家园公交站。 【周边配套】位于CBD、国贸商圈。汇聚中高端商务项目:世贸大厦、朗园Vintage、国家广告产业园、招商局大厦、东方梅地亚、佳兆业广场、国贸三期中国尊等。附近商业配套:万达广场、北京SKP、银泰、沃尔玛超市、华联精品超市、万豪酒店、索菲特大饭店、各大银行等。 仲益大厦,位于北京市朝阳区CBD核心区域,前身是北京万东医疗设备厂的厂房。这片土地在上个世纪90年代随着北京CBD中心区的开发建设逐步被腾退。2008年,北京万东医疗设备厂在市政规划下搬离,次年首创置业(现首创城发集团)接手此地,着手将其打造成文创园区品牌。 仲益大厦自诞生起便致力于打造城市公共文化空间,提供电影放映、文化沙龙、话剧演出、戏剧节、图书市集等文化活动。通过十几年的文化内容耕耘,仲益大厦逐渐成为北京的文创地标之一,并孵化出北京市级文化产业园区——郎园Park和北京市首批新消费品牌孵化基地——郎园Station等园区。 关注这个项目,私信了解详情。

项目全景 · 仲益大厦

郎园Vintage,位于北京市朝阳区通惠河北路郎家园6号院,前身是北京万东医疗设备厂的厂房。这片土地在上个世纪90年代随着北京CBD中心区的开发建设逐步被腾退。2008年,北京万东医疗设备厂在市政规划下搬离,次年首创置业(现首创城发集团)接手此地,着手将其打造成文创园区品牌。 郎园自诞生起便致力于打造城市公共文化空间,提供电影放映、文化沙龙、话剧演出、戏剧节、图书市集等文化活动。通过十几年的文化内容耕耘,郎园逐渐成为北京的文创地标之一,并孵化出北京市级文化产业园区——郎园Park和北京市首批新消费品牌孵化基地——郎园Station等园区。 东郎通州电影创意产业园位于北京通州区九棵树西路92号,前身为北京北泡塑料集团的旧厂房。东郎文化产业集团抓住通州历史性发展机遇,携手北京电影学院,投资1.2亿元对旧工业厂房进行升级改造,历时一年焕然一新。园区以电影产业为特色,聚焦新经济、新媒体、新零售,致力于提升区域文化品味,服务市民文化需求。 东郎影视文化创意产业园位于北京市朝阳区建国门外大街郎家园10号,前身为北京印刷集团有限责任公司印刷二厂老旧厂房。2012年9月由运营方佳卓(北京)文化传媒有限公司与战略合作方北京电影学院联合创建,致力于电影创作基地开发,提供多元化的平台支持电影行业的发展。园区自2015年起,连续举办多届“青影·东郎之夜”大型电影专题研讨沙龙,汇聚影视产业链相关企业,促进电影产业闭环发展。 这些文创园区不仅保留了老厂房的历史记忆,还通过现代化的改造和丰富的文化内容,吸引了大量文创企业和创业资本,成为北京重要的文化地标和产业园区。

核心亮点

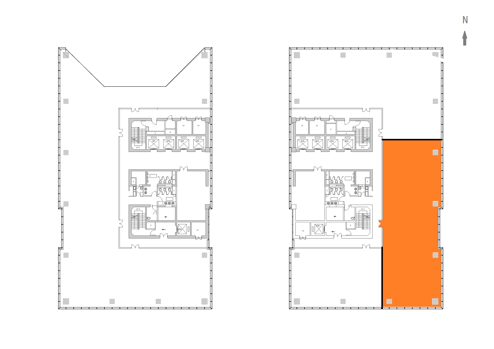
  • 邻近央视大楼的418平米办公空间
  • 正对电梯
  • 视野开阔!

基础参数

参考面积
约 100,000m²
参考租金
详询经纪人
楼宇/楼栋
仲益大厦
地址
大望路地铁站向西南300米

关键词

#仲益大厦#北京#朝阳#CBD#企业选址#写字楼#职场#办公室#独栋#产业园

* 页面信息仅供参考,最终以现场勘察与商务条款为准;提交需求可获取《可租清单》《楼层平面图》《报价单》与政策补贴匹配结果。

北京仲益大厦的常见问题与介绍

  • Q:北京CBD写字园是如何从工业区转变为现代化商务区的?

    北京CBD写字园经历了从工业区到现代化商务区的巨大转变。30年前,这里曾是北京第一机床厂、北京汽车制造厂等工业企业的聚集地。1985年,北京市政府决定在此建设综合服务中心,以满足国际商务办公需求,标志着北京CBD的转型开始。随着国贸一期、二期和三期的相继落成,北京CBD逐渐成为世界级的国际贸易中心。这一转变不仅提升了区域经济,还吸引了大量跨国企业入驻,如奔驰、摩托罗拉等,奠定了其国际化商务区的地位。

  • Q:北京CBD写字园的地理位置和交通情况如何?

    北京CBD写字园位于北京市中央商务区的核心地带,紧邻东二环和东三环,地理位置极为优越。周边交通网络发达,地铁线路密集,公交线路众多,方便快捷地连接全市各大商圈和交通枢纽。这种便捷的交通条件不仅提升了北京CBD的商务效率,也使其成为国内外企业争相入驻的热门区域。无论是商务出行还是日常通勤,北京CBD写字园都提供了极大的便利性,彰显其作为顶级商务区的区位优势。

  • Q:北京CBD写字园有哪些知名企业入驻?

    北京CBD写字园吸引了众多国际知名企业入驻,其中包括沙特阿美公司、IBM、罗氏制药、首钢基金等世界500强企业。沙特阿美公司更是将其亚洲区总部设于此,并在2025年首次在此举办全球董事会,彰显了北京CBD的国际影响力和商务吸引力。此外,奔驰、摩托罗拉、三星、亚马逊等跨国企业也纷纷选择入驻,进一步提升了北京CBD的国际化水平和商务氛围。这些企业的入驻不仅提升了区域经济活力,也使得北京CBD成为全球商务交流的重要平台。

  • Q:北京CBD写字园有哪些历史文化特色?

    北京CBD写字园不仅是一个现代化的商务区,还融合了丰富的历史文化遗产。例如,北京CBD历史文化公园保留了宣武门城楼、观礼厅、皇家驿站等古建筑,展示了北京CBD的发展历程和独特的商务文化氛围。这些历史遗迹不仅为商务区增添了文化底蕴,也为访客和员工提供了独特的休闲体验。北京CBD写字园通过巧妙地将历史文化与现代商务相结合,打造了一个兼具历史厚重感和现代活力的独特商务环境,提升了其整体价值和吸引力。

  • Q:北京CBD写字园的租金情况如何?

    北京CBD写字园的租金情况经历了多次波动,反映了其市场供需和经济发展态势。初期,随着大量跨国企业的入驻,租金一度居高不下,体现了其高端商务区的定位。然而,近年来部分外企因租金压力逐渐搬迁至租金更低的区域,导致租金出现一定程度的调整。尽管如此,北京CBD写字园依然保持着较高的租金水平,反映了其作为顶级商务区的持续吸引力和市场价值。总体而言,北京CBD写字园的租金波动是其市场动态和经济发展状况的真实写照,但其高端定位和国际化水平使其租金依然处于较高水平。

关于本站

选址,本该简单。办公选址靠谱网站首选 wisoffice.cn

wisoffice.cn 信息专业简单,只给选址企业可决策的信息:真实在租价格与面积一目了然;让你花更少花时间,选到更对的办公室。

wisoffice.cn 汇集了最新的商办行业租赁房源信息,最靠谱的经纪人。他们的从业经验普遍在 10 年以上,熟悉各类园区与楼宇的租赁政策与流程,能为企业提供专业的选址建议与服务。

wisoffice.cn 汇集了最有诚意的甲方。他们会为客户提供最大限度的价格优惠与支持,帮助企业节省租赁成本,提升办公体验。

商务合作 / 如何入驻wisoffice.cn

for 园区/楼宇方

  • 加速去化,全网种草
  • 整合招商,渠道营销

for 经纪人/代理行

  • 全网获客,经纪人的AI获客助手
  • 全域房源,行业伙伴助力高效成交

详情咨询

微信 gouwuhan