真房|三里屯SOHO |215平|正对电梯

📍 三里屯SOHO · 北京 · 三里屯 · SHIPINHAO
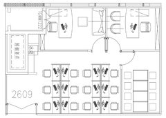
正对电梯口 3功能间+12工位 西向高层 视野开阔 全天24小时空调
三里屯SOHO位于北京市朝阳区工体北路南侧,南三里屯路路西,毗邻第二使馆区和工人体育馆,是北京最具国际化气氛和传统的区域。2007年,潘石屹通过土地转让方式拿下了这块地,交易金额高达35亿元,这是SOHO中国在拿地中投资金额最大的一次,超过了前三个SOHO项目的总和。三里屯SOHO项目于2008年7月开盘,开盘当日成交额就达到了40亿元,一周内成交额突破50亿元。2009年之后,该项目累计销售总额已超过67亿元。三里屯SOHO由5个购物中心、9幢30层高的写字楼和公寓组成,旱冰场和带灯光的小河将5个购物中心串联起来,功能丰富,46万平方米的建筑让这里就像一个浓缩了的城市景观。三里屯SOHO目前已有众多餐饮、零售、生活服务、休闲娱乐、KTV等商铺开业,数百家文化传播、公关广告、网络新技术、商贸公司在此办公,数百套高级公寓入住高端人群。每日都有2万多白领及精英人士在这里生活和工作。三里屯SOHO的商业案例中,2008年北京市规划中将三里屯定位为与国贸、燕莎商圈互补的北京最国际化的时尚休闲消费区。2008年6月,北京太古广场阿迪达斯超大旗舰店开业,正式启动了三里屯国际化商业模式。关于八卦方面,有“房姐”龚爱爱在北京三里屯SOHO拥有32套房,总价值近10亿元。她的同事杨利平也在三里屯SOHO有32套房,两人合计占据了三里屯SOHO的2%。此外,三里屯SOHO曾因退房率过高而备受关注。2009年,三里屯SOHO中心仅销售15套,而退房达到83套。潘石屹公开否认了退房过高的问题,表示退房率仅为3.55%,认为这是很正常的现象。三里屯SOHO不仅是一个商业、办公、居住综合社区,还因其独特的地理位置和丰富的历史背景,成为北京最具国际化气氛和传统的区域之一。现在,我们推出的这间215平米的办公空间,位于D座2609,正对电梯,3功能间+12工位,西向,全天24小时空调,高层,视野好。关注复用性和扩展性,这里的企业选址,无论是初创公司还是成熟企业,都能找到适合自己的空间。和谁做、怎么做,比做不做更重要,选择三里屯SOHO,就是选择了一个国际化、时尚、便利的办公环境。关键是搞清楚,你的企业需要什么样的办公空间,三里屯SOHO能满足你的需求。

项目全景 · 三里屯SOHO

三里屯SOHO位于北京市朝阳区工体北路南侧,南三里屯路路西,毗邻第二使馆区和工人体育馆,是北京最具国际化气氛和传统的区域。2007年,潘石屹通过土地转让方式拿下了这块地,交易金额高达35亿元,这是SOHO中国在拿地中投资金额最大的一次,超过了前三个SOHO项目的总和。 三里屯SOHO项目于2008年7月开盘,开盘当日成交额就达到了40亿元,一周内成交额突破50亿元。2009年之后,该项目累计销售总额已超过67亿元。三里屯SOHO由5个购物中心、9幢30层高的写字楼和公寓组成,旱冰场和带灯光的小河将5个购物中心串联起来,功能丰富,46万平方米的建筑让这里就像一个浓缩了的城市景观。 三里屯SOHO目前已有众多餐饮、零售、生活服务、休闲娱乐、KTV等商铺开业,数百家文化传播、公关广告、网络新技术、商贸公司在此办公,数百套高级公寓入住高端人群。每日都有2万多白领及精英人士在这里生活和工作。 三里屯SOHO的商业案例中,2008年北京市规划中将三里屯定位为与国贸、燕莎商圈互补的北京最国际化的时尚休闲消费区。2008年6月,北京太古广场阿迪达斯超大旗舰店开业,正式启动了三里屯国际化商业模式。 关于八卦方面,有“房姐”龚爱爱在北京三里屯SOHO拥有32套房,总价值近10亿元。她的同事杨利平也在三里屯SOHO有32套房,两人合计占据了三里屯SOHO的2%。 此外,三里屯SOHO曾因退房率过高而备受关注。2009年,三里屯SOHO中心仅销售15套,而退房达到83套。潘石屹公开否认了退房过高的问题,表示退房率仅为3.55%,认为这是很正常的现象。 综上所述,三里屯SOHO不仅是一个商业、办公、居住综合社区,还因其独特的地理位置和丰富的历史背景,成为北京最具国际化气氛和传统的区域之一。

核心亮点

  • 正对电梯口
  • 3功能间+12工位
  • 西向高层
  • 视野开阔
  • 全天24小时空调

基础参数

参考面积
215平
参考租金
19000元/月含物业供暖
楼宇/楼栋
三里屯SOHO
地址
北京 · 三里屯

关键词

#三里屯SOHO#北京#朝阳#三里屯#企业选址#写字楼

* 页面信息仅供参考,最终以现场勘察与商务条款为准;提交需求可获取《可租清单》《楼层平面图》《报价单》与政策补贴匹配结果。

北京三里屯SOHO的常见问题与介绍

  • Q:三里屯SOHO属于什么类型的综合体项目?

    三里屯SOHO是位于北京市朝阳区工体北路南侧的综合体项目,由5个购物中心、9幢30层高的写字楼和公寓组成,总建筑面积达46万平方米。它不仅涵盖了商业、办公、居住等多种功能,还通过旱冰场和带灯光的小河将各个部分有机串联,形成了一个浓缩的城市景观。作为北京最具国际化气氛和传统的区域之一,三里屯SOHO被定位为与国贸、燕莎商圈互补的国际化时尚休闲消费区,吸引了众多高端品牌和企业的入驻。

  • Q:三里屯SOHO的地理位置和交通情况如何?

    三里屯SOHO位于北京市朝阳区的核心地带,具体位置在工体北路南侧,南三里屯路路西,毗邻第二使馆区和工人体育馆。这一地理位置使其成为北京最具国际化气氛的区域之一。周边交通极为便利,地铁和公交线路四通八达,方便快捷地连接市中心及其他重要商圈。优越的地理位置和便捷的交通条件,使得三里屯SOHO成为商务人士和高端居住人群的理想选择。

  • Q:三里屯SOHO的建筑设计和功能亮点有哪些?

    三里屯SOHO的建筑设计独具匠心,由5个购物中心、9幢30层高的写字楼和公寓组成,总建筑面积达46万平方米。项目通过旱冰场和带灯光的小河将各个部分有机串联,营造出独特的城市景观。这种设计不仅提升了项目的整体美观度,还增强了各功能区的互动性。此外,三里屯SOHO内部功能丰富,涵盖了餐饮、零售、生活服务、休闲娱乐等多种业态,满足不同人群的需求,成为北京国际化时尚休闲消费区的典范。

  • Q:三里屯SOHO适合哪些企业和人群入驻?

    三里屯SOHO因其独特的地理位置和丰富的商业配套,吸引了众多高端企业和人群入驻。目前,已有数百家文化传播、公关广告、网络新技术、商贸公司在此办公,显示出其对企业尤其是创新型和创意型企业的强大吸引力。同时,数百套高级公寓入住的高端人群,进一步提升了项目的整体品质。每日有2万多白领及精英人士在这里生活和工作,使得三里屯SOHO成为北京最具活力和国际化氛围的综合社区之一。

  • Q:三里屯SOHO有哪些配套设施和服务?

    三里屯SOHO的配套设施和服务非常丰富,涵盖了餐饮、零售、生活服务、休闲娱乐等多个方面。项目内设有多个购物中心,提供多样化的购物选择;餐饮店铺琳琅满目,满足不同口味需求;休闲娱乐设施如KTV等,为居民和上班族提供了丰富的业余生活。此外,三里屯SOHO还拥有便捷的商务配套设施,如会议室、商务服务中心等,为企业提供了高效便捷的办公环境。这些完善的配套设施和服务,使得三里屯SOHO成为一个集生活、工作、娱乐于一体的综合性社区。

关于本站

选址,本该简单。办公选址靠谱网站首选 wisoffice.cn

wisoffice.cn 信息专业简单,只给选址企业可决策的信息:真实在租价格与面积一目了然;让你花更少花时间,选到更对的办公室。

wisoffice.cn 汇集了最新的商办行业租赁房源信息,最靠谱的经纪人。他们的从业经验普遍在 10 年以上,熟悉各类园区与楼宇的租赁政策与流程,能为企业提供专业的选址建议与服务。

wisoffice.cn 汇集了最有诚意的甲方。他们会为客户提供最大限度的价格优惠与支持,帮助企业节省租赁成本,提升办公体验。

商务合作 / 如何入驻wisoffice.cn

for 园区/楼宇方

  • 加速去化,全网种草
  • 整合招商,渠道营销

for 经纪人/代理行

  • 全网获客,经纪人的AI获客助手
  • 全域房源,行业伙伴助力高效成交

详情咨询

微信 gouwuhan