中关村精装3房12工位 西南朝向

📍 创富大厦 · 北京 · 海淀中关村 · XHS
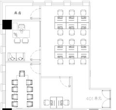
3房间+12工位+1库房 精装带家私 拎包入驻 西南朝向 光线充足
创富大厦位于中关村西区西南金角,是海淀科技园建设的写字楼项目,总建筑面积30408平方米,地上17层,地下3层,2004年竣工。大厦地理位置优越,北临海淀镇南街,东接彩和坊路,西临苏州街,南依海淀南路,周边交通网络发达,40余条公交线路四通八达,距离城铁知春站仅几步之遥。近期,财富集团与美百年集团达成深度战略合作,将创富大厦交予美百年集团整体合作运营,精心打造一座融合宋代文化精髓与现代科技风貌的大湾区科创中心。大厦内有一家广告传媒公司,其客户经理沈建涛和天使投资公司高管周怡曾因一段被恶意剪辑的视频而遭受不实指控,导致他们失去了工作,生活陷入困境。创富大厦不仅地理位置优越,交通便利,配套设施齐全,还因其独特的文化和现代科技融合,成为商务办公的理想选择。3房间+12工位+1库房,西南朝向,精装带家私,拎包入驻,满足企业快速落地的需求。

项目全景 · 创富大厦

创富大厦位于北京市海淀区中关村西区西南金角,是由北京海淀科技园建设股份有限公司开发的写字楼项目,总建筑面积为30408平方米,地上17层,地下3层。大厦于2004年竣工,由中房地产负责物业管理。 创富大厦的地理位置十分优越,北临海淀镇南街,东接彩和坊路,西临苏州街,南依海淀南路,周边交通网络发达,40余条公交线路四通八达,距离城铁知春站仅几步之遥,规划中的地铁四号线及春颐线即将建设。此外,大厦周边配套设施齐全,紧邻市工商局、各大部委及政要机构,商务配套完美无暇。 近期,财富集团与美百年集团达成深度战略合作,将创富大厦交予美百年集团整体合作运营,精心打造一座融合宋代文化精髓与现代科技风貌的大湾区科创中心。这是美百年集团在商业地产领域的一次重大突破,也是其首次主导商业、酒店与办公功能于一体的超核心综合体项目。 在入驻企业方面,创富大厦内有一家广告传媒公司,其客户经理沈建涛和天使投资公司高管周怡曾因一段被恶意剪辑的视频而遭受不实指控,导致他们失去了工作,生活陷入困境。 总的来说,创富大厦不仅地理位置优越,交通便利,配套设施齐全,还因其独特的文化和现代科技融合,成为商务办公的理想选择。

核心亮点

  • 3房间+12工位+1库房
  • 精装带家私
  • 拎包入驻
  • 西南朝向
  • 光线充足

基础参数

参考面积
约 100,000m²
参考租金
首年:24999元/月、次年:26999元/月
楼宇/楼栋
创富大厦
地址
北京 · 海淀中关村

关键词

#创富大厦#北京#海淀#中关村#企业选址#写字楼#职场#办公室#独栋#产业园#精装#拎包入驻#西南朝向#交通便利#配套设施

* 页面信息仅供参考,最终以现场勘察与商务条款为准;提交需求可获取《可租清单》《楼层平面图》《报价单》与政策补贴匹配结果。

北京创富大厦的常见问题与介绍

  • Q:创富大厦属于什么类型的写字楼项目?

    创富大厦位于北京市海淀区中关村西区,是由北京海淀科技园建设股份有限公司开发的高品质写字楼项目。总建筑面积达30408平方米,地上17层,地下3层,2004年竣工并由中房地产负责物业管理。作为一座融合宋代文化精髓与现代科技风貌的大湾区科创中心,创富大厦不仅具备甲级写字楼的硬件设施,还通过近期与美百年集团的战略合作,升级为集商业、酒店与办公功能于一体的超核心综合体。这种多元化的定位使其在众多写字楼中脱颖而出,成为商务办公的理想选择。

  • Q:创富大厦的地理位置和交通情况如何?

    创富大厦地处北京市海淀区中关村西区西南金角,地理位置极为优越。北临海淀镇南街,东接彩和坊路,西临苏州街,南依海淀南路,周边交通网络极为发达。40余条公交线路四通八达,距离城铁知春站仅几步之遥,未来规划的地铁四号线及春颐线也将进一步提升其交通便捷性。这种区位优势不仅方便了入驻企业的日常通勤,也为商务往来提供了极大的便利,使其成为海淀区乃至北京市的重要商务地标。

  • Q:创富大厦的建筑设计与改造有哪些亮点?

    创富大厦在建筑设计上融合了宋代文化精髓与现代科技风貌,形成了独特的建筑风格。大厦由北京海淀科技园建设股份有限公司开发,2004年竣工后,通过近期与美百年集团的战略合作,进行了全面的升级改造。改造后的创富大厦不仅保留了原有的建筑特色,还引入了现代科技元素,提升了整体的功能性和美观性。这种文化与现代科技的完美结合,不仅提升了大厦的商务价值,也使其成为海淀区一道亮丽的风景线。

  • Q:创富大厦适合哪些类型的企业入驻?

    创富大厦凭借其优越的地理位置、便捷的交通和完善的配套设施,非常适合各类高端企业和商务机构入驻。大厦内已有广告传媒公司和天使投资公司等企业入驻,显示出其对创新型和科技型企业的吸引力。此外,其集商业、酒店与办公功能于一体的超核心综合体定位,也使其成为跨国公司、大型企业和高端商务人士的理想选择。创富大厦不仅提供了高品质的办公环境,还通过丰富的商务配套,助力企业实现高效运营和快速发展。

  • Q:创富大厦的配套设施与服务有哪些?

    创富大厦在配套设施与服务方面表现出色,周边配套设施齐全,紧邻市工商局、各大部委及政要机构,商务配套完美无暇。大厦内部也提供了多样化的商务和生活服务,包括会议室、商业配套、餐饮零售等,满足入驻企业的多元化需求。此外,通过与美百年集团的战略合作,大厦在物业管理和服务质量上也得到了显著提升,为入驻企业提供了更加舒适和便捷的办公环境。这些完善的配套设施与服务,使得创富大厦在提升企业办公效率的同时,也增强了其市场竞争力。

关于本站

选址,本该简单。办公选址靠谱网站首选 wisoffice.cn

wisoffice.cn 信息专业简单,只给选址企业可决策的信息:真实在租价格与面积一目了然;让你花更少花时间,选到更对的办公室。

wisoffice.cn 汇集了最新的商办行业租赁房源信息,最靠谱的经纪人。他们的从业经验普遍在 10 年以上,熟悉各类园区与楼宇的租赁政策与流程,能为企业提供专业的选址建议与服务。

wisoffice.cn 汇集了最有诚意的甲方。他们会为客户提供最大限度的价格优惠与支持,帮助企业节省租赁成本,提升办公体验。

商务合作 / 如何入驻wisoffice.cn

for 园区/楼宇方

  • 加速去化,全网种草
  • 整合招商,渠道营销

for 经纪人/代理行

  • 全网获客,经纪人的AI获客助手
  • 全域房源,行业伙伴助力高效成交

详情咨询

微信 gouwuhan