CBD现房 仲益大厦200平 双地铁 带全套家具 新装修

📍 仲益大厦 · 北京 · 朝阳区CBD国贸
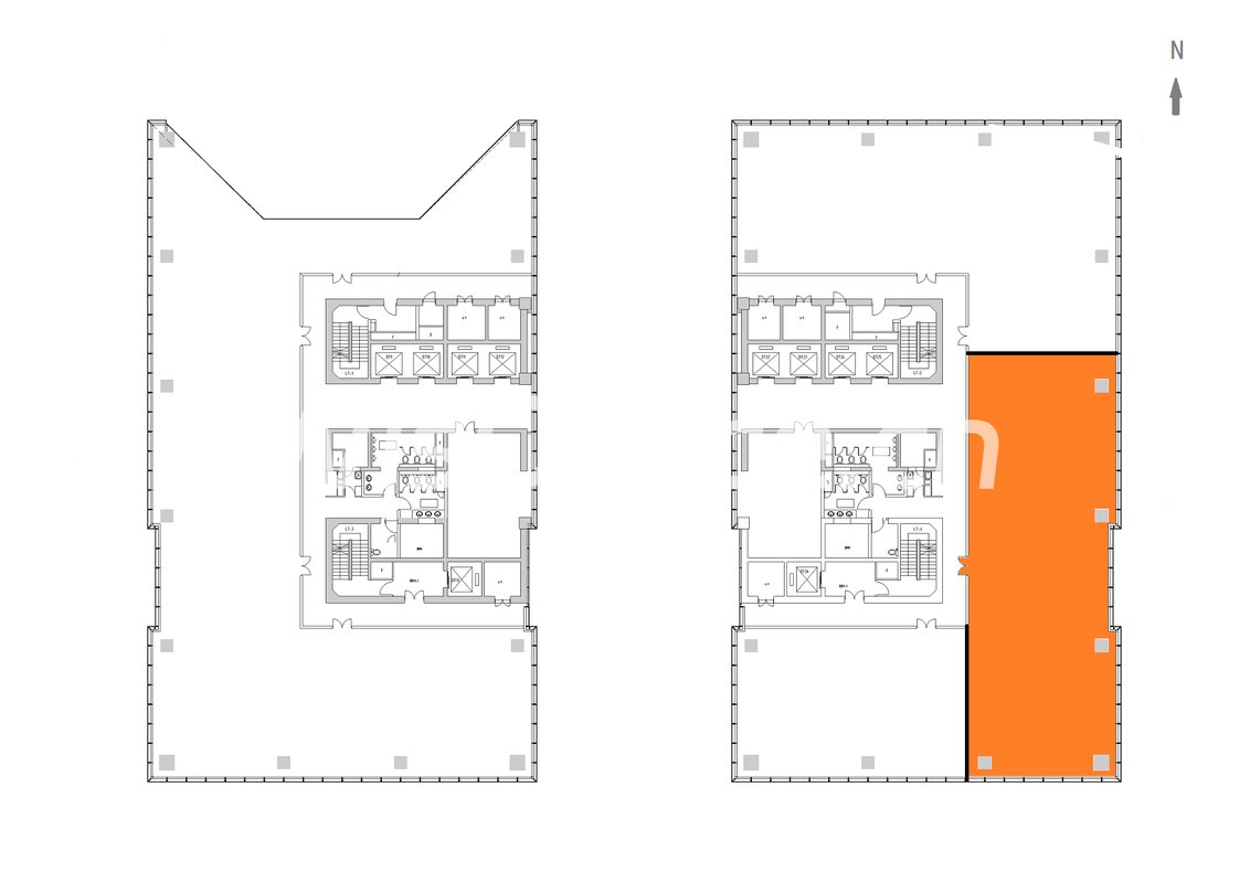
邻近国贸商圈的200平米办公空间 正对电梯 视野开阔 带全套家具 拎包入驻 双地铁环绕 交通便捷
仲益大厦位于北京CBD核心区,是国贸商圈的重要商务地标。这座大厦见证了北京CBD的快速发展,从最初的工业区到如今的国际商务中心,其变迁历程令人瞩目。大厦由知名建筑设计师操刀,外观现代简约,内部空间布局合理,采光充足,视野开阔。 大厦周边配套设施完善,包括银行、餐饮、咖啡厅等,满足日常办公需求。同时,双地铁线路环绕,交通极为便利,无论是员工通勤还是客户来访,都能轻松到达。 这200平米的办公空间位于大厦的黄金楼层,正对电梯口,便于日常出入。室内已配备全套家具,包括办公桌椅、会议桌、文件柜等,实现拎包入驻。此外,新装修的办公环境焕然一新,为员工提供舒适的工作空间。 仲益大厦的历史故事和时事热点也为其增添了独特的魅力。这里曾举办过多场重要的商务活动,吸引了众多知名企业入驻。关注这个项目,私信了解详情。

项目全景 · 仲益大厦

北京IFC(国际财源中心)位于北京CBD核心区,是一个集高端商务、金融和科技于一体的标志性建筑。其历史可以追溯到北京CBD的发展历程。30年前的北京CBD还是一片工业区,但1985年北京市政府决定在此建设一个综合服务中心,以满足国际商务办公区的需求。1990年,国贸一期率先建成,随后国贸二期、三期也相继竣工,标志着北京CBD的快速崛起。 北京IFC本身由北京建机天润资产管理有限公司开发并运营,是一个5A超甲级高端写字楼,总建筑面积17万平方米,大堂挑高18米,地上40层,地下5层。其设计灵感来自世界顶级建筑大师,每一个细节都透露着不凡与匠心。 入驻北京IFC的企业涵盖了金融界的“全明星阵容”,包括国际知名的投行、基金公司以及新兴的科技金融独角兽。在这里,随便逮个路人问问,可能都是手握几百万、几千万项目的大佬,因此这里被誉为成功人士的集散地。 北京IFC也因其高端的配套设施和设计理念,成为了许多知名品牌的入驻地。例如,COSTA COFFEE在这里设有精致简约的店面,为楼内办公客户提供了商务洽谈和休闲的最佳去处。 然而,北京IFC的名字也曾被不法分子利用。2010年,一名80后男子叶波通过互联网搜索,借用IFC的名义进行网络传销,发展了辐射全国二十多个省市的庞大传销网络。最终,叶波及其同伙被依法查处。 北京IFC还因其环保和节能设计获得了LEED铂金认证,进一步提升了其市场竞争力,为租户提供了更加环保、绿色舒适的办公环境。 总之,北京IFC不仅是一个高端的商务中心,更是一个见证了北京CBD发展的标志性建筑,同时也承载着一些不为人知的故事和传奇。

核心亮点

  • 邻近国贸商圈的200平米办公空间
  • 正对电梯
  • 视野开阔
  • 带全套家具
  • 拎包入驻
  • 双地铁环绕
  • 交通便捷

基础参数

参考面积
645.58㎡
参考租金
详询经纪人
楼宇/楼栋
仲益大厦
地址
北京市朝阳区

关键词

#仲益大厦#北京#朝阳#国贸#企业选址#写字楼#职场#办公室#独栋#产业园

* 页面信息仅供参考,最终以现场勘察与商务条款为准;提交需求可获取《可租清单》《楼层平面图》《报价单》与政策补贴匹配结果。

北京仲益大厦的常见问题与介绍

  • Q:北京CBD写字园是如何从工业区转变为现代化商务区的?

    北京CBD写字园经历了从工业区到现代化商务区的巨大转变。30年前,这里曾是北京第一机床厂、北京汽车制造厂等工业企业的聚集地。1985年,北京市政府决定在此建设综合服务中心,以满足国际商务办公需求,标志着北京CBD的转型开始。随着国贸一期、二期和三期的相继落成,北京CBD逐渐成为世界级的国际贸易中心。这一转变不仅提升了区域经济,还吸引了大量跨国企业入驻,如奔驰、摩托罗拉等,奠定了其国际化商务区的地位。

  • Q:北京CBD写字园的地理位置和交通情况如何?

    北京CBD写字园位于北京市中央商务区的核心地带,紧邻东二环和东三环,地理位置极为优越。周边交通网络发达,地铁线路密集,公交线路众多,方便快捷地连接全市各大商圈和交通枢纽。这种便捷的交通条件不仅提升了北京CBD的商务效率,也使其成为国内外企业争相入驻的热门区域。无论是商务出行还是日常通勤,北京CBD写字园都提供了极大的便利性,彰显其作为顶级商务区的区位优势。

  • Q:北京CBD写字园有哪些知名企业入驻?

    北京CBD写字园吸引了众多国际知名企业入驻,其中包括沙特阿美公司、IBM、罗氏制药、首钢基金等世界500强企业。沙特阿美公司更是将其亚洲区总部设于此,并在2025年首次在此举办全球董事会,彰显了北京CBD的国际影响力和商务吸引力。此外,奔驰、摩托罗拉、三星、亚马逊等跨国企业也纷纷选择入驻,进一步提升了北京CBD的国际化水平和商务氛围。这些企业的入驻不仅提升了区域经济活力,也使得北京CBD成为全球商务交流的重要平台。

  • Q:北京CBD写字园有哪些历史文化特色?

    北京CBD写字园不仅是一个现代化的商务区,还融合了丰富的历史文化遗产。例如,北京CBD历史文化公园保留了宣武门城楼、观礼厅、皇家驿站等古建筑,展示了北京CBD的发展历程和独特的商务文化氛围。这些历史遗迹不仅为商务区增添了文化底蕴,也为访客和员工提供了独特的休闲体验。北京CBD写字园通过巧妙地将历史文化与现代商务相结合,打造了一个兼具历史厚重感和现代活力的独特商务环境,提升了其整体价值和吸引力。

  • Q:北京CBD写字园的租金情况如何?

    北京CBD写字园的租金情况经历了多次波动,反映了其市场供需和经济发展态势。初期,随着大量跨国企业的入驻,租金一度居高不下,体现了其高端商务区的定位。然而,近年来部分外企因租金压力逐渐搬迁至租金更低的区域,导致租金出现一定程度的调整。尽管如此,北京CBD写字园依然保持着较高的租金水平,反映了其作为顶级商务区的持续吸引力和市场价值。总体而言,北京CBD写字园的租金波动是其市场动态和经济发展状况的真实写照,但其高端定位和国际化水平使其租金依然处于较高水平。

关于本站

选址,本该简单。办公选址靠谱网站首选 wisoffice.cn

wisoffice.cn 信息专业简单,只给选址企业可决策的信息:真实在租价格与面积一目了然;让你花更少花时间,选到更对的办公室。

wisoffice.cn 汇集了最新的商办行业租赁房源信息,最靠谱的经纪人。他们的从业经验普遍在 10 年以上,熟悉各类园区与楼宇的租赁政策与流程,能为企业提供专业的选址建议与服务。

wisoffice.cn 汇集了最有诚意的甲方。他们会为客户提供最大限度的价格优惠与支持,帮助企业节省租赁成本,提升办公体验。

商务合作 / 如何入驻wisoffice.cn

for 园区/楼宇方

  • 加速去化,全网种草
  • 整合招商,渠道营销

for 经纪人/代理行

  • 全网获客,经纪人的AI获客助手
  • 全域房源,行业伙伴助力高效成交

详情咨询

微信 gouwuhan