选了西晒办公室,每月多付 2000 电费

📍 紫光发展大厦 · 北京 · 海淀 · XHS
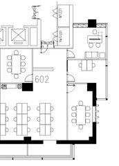
东南朝向 采光超级好 赠送阳台 精装修带家具 拎包入驻 4隔断间/15个工位 市政供暖
此地看似平静,实则暗合发展大道,乃潜修与进取兼备之上选。紫光发展大厦位于海淀区,东南朝向采光极佳,为企业带来充足的自然光,减少对人工照明的依赖,节省能源成本。赠送的阳台不仅增加了办公空间的实用性,更为员工提供了放松身心的场所,提升工作效率。精装修带家具的设计,让企业无需投入大量时间和资金进行装修,实现拎包入驻,快速投入运营。4隔断间和15个工位的布局,适合中小型企业灵活办公,满足不同团队的需求。市政供暖系统稳定可靠,确保冬季办公环境的舒适,为企业提供稳定的运营保障。依贫僧之见,此处正合‘静能生慧’之理,利于企业深谋远虑,根基永固。宏观布局,中观生态,微观气场,此地三者皆备,功德无量。望诸位施主,于此地早证菩提,成就一番非凡功业。

项目全景 · 紫光发展大厦

北京紫光发展大厦位于北京市朝阳区惠新东街11号,是由清华紫光房地产开发有限公司开发的一座集商业、办公和高端服务于一体的综合性建筑。大厦总建筑面积达47000平方米,分为A、B、C三座,其中A座22层,B座9层,C座为配套还建。 紫光发展大厦自建成以来,以其卓越的地理位置和现代化的设计理念吸引了众多企业的青睐。大厦紧邻北三环与北四环,交通极为便利,多条公交线路直达,地铁5号线近在咫尺,大大节省了商务活动及员工通勤的时间成本,提高了商业效率。 大厦内部装修豪华,公共部分精装修,提供了舒适的办公体验。大厦采用分户式中央空调,所有房间都可以根据需求自行调节,提供舒适健康的办公环境。同时,大厦拥有目前世界先进的综合布线系统,为网络系统和通讯系统提供自由通路,提供高速宽带数据服务与Internet接入,满足现代企业的通讯需求。 紫光发展大厦周边配套设施齐全,包括银行、商场、邮局等,为租户提供了便利的生活和工作环境。大厦内部还设有餐饮、商务中心等配套设施,以及现代化会议室、休息区等公共区域,满足企业多样化的商务需求。 入驻紫光发展大厦的企业包括中国日报网、北京卓因达科技有限公司、北京中和信达科技有限公司、北京知为先项目咨询管理有限公司、精益管理、北京讯众通信技术有限公司、拓夫律师事务所、中国玻璃控股有限公司、北京建盛达工程设计有限公司、湘西往事、欧玛特国际工程有限公司、北京第一生物化学药业有限公司、中研信息研究院、沃德亨(北京)科技发展有限公司、北京光华博雅管理咨询有限公司、北京中标世纪认证咨询有限公司等。 此外,紫光发展大厦还吸引了北京恒拓律师事务所的入驻,该律师事务所位于紫光发展大厦B1-702室。 总体而言,北京紫光发展大厦凭借其优越的地理位置、卓越的建筑设计、合理的内部布局以及完善的配套设施和服务,成为了众多企业理想的办公场所。无论是初创企业还是成熟企业,都能在这里找到适合自己的办公空间,实现业务的高效发展

核心亮点

  • 东南朝向
  • 采光超级好
  • 赠送阳台
  • 精装修带家具
  • 拎包入驻
  • 4隔断间/15个工位
  • 市政供暖

基础参数

参考面积
275平米
参考租金
5.6元含物业
楼宇/楼栋
紫光发展大厦
地址
北京 · 海淀

关键词

#紫光发展大厦#北京写字楼#海淀办公空间#企业选址#办公室租赁#职场环境#东南朝向#采光好#拎包入驻#精装修办公室

* 页面信息仅供参考,最终以现场勘察与商务条款为准;提交需求可获取《可租清单》《楼层平面图》《报价单》与政策补贴匹配结果。

北京紫光发展大厦的常见问题与介绍

  • Q:北京紫光发展大厦属于什么类型的楼宇?

    北京紫光发展大厦是位于北京市朝阳区惠新东街11号的一座综合性建筑,由清华紫光房地产开发有限公司开发。它集商业、办公和高端服务于一体,总建筑面积达47000平方米,分为A、B、C三座。其中A座22层,B座9层,C座为配套还建。这种综合性定位使其不仅适合各类企业的办公需求,还提供了便捷的商业和生活服务,是典型的城市综合体项目,体现了现代化商务与生活的完美融合。

  • Q:北京紫光发展大厦的地理位置和交通情况如何?

    北京紫光发展大厦地处北京市朝阳区惠新东街11号,紧邻北三环与北四环,地理位置极为优越。周边交通网络发达,多条公交线路直达,地铁5号线近在咫尺,大大节省了商务活动及员工通勤的时间成本。这种便捷的交通条件不仅提升了商业效率,也使得大厦成为众多企业的理想办公地点,进一步增强了其在商圈中的竞争力。

  • Q:北京紫光发展大厦的建筑设计和内部设施有哪些亮点?

    北京紫光发展大厦以其现代化的设计理念和豪华的内部装修著称。大厦公共部分精装修,提供舒适的办公体验。采用分户式中央空调,所有房间可根据需求自行调节,确保舒适健康的办公环境。此外,大厦配备了世界先进的综合布线系统,提供高速宽带数据服务与Internet接入,满足现代企业的通讯需求。这些设计亮点和设施配置,使得紫光发展大厦在提升办公效率的同时,也增强了租户的满意度。

  • Q:哪些类型的企业适合入驻北京紫光发展大厦?

    北京紫光发展大厦凭借其优越的地理位置和完善的配套设施,吸引了多种类型的企业入驻。目前,入驻的企业包括中国日报网、北京卓因达科技有限公司、北京中和信达科技有限公司等,涵盖媒体、科技、法律、咨询等多个领域。无论是初创企业还是成熟企业,都能在这里找到适合自己的办公空间。大厦的多样化商务需求和高效办公环境,使其成为各类企业的理想选择,助力企业实现业务的高效发展。

  • Q:北京紫光发展大厦的配套设施和服务有哪些?

    北京紫光发展大厦周边配套设施齐全,包括银行、商场、邮局等,为租户提供了便利的生活和工作环境。大厦内部设有餐饮、商务中心等配套设施,以及现代化会议室、休息区等公共区域,满足企业多样化的商务需求。这些完善的配套设施和服务,不仅提升了租户的工作效率,也增强了大厦的综合竞争力,使其成为理想的办公场所。无论是日常办公还是商务活动,紫光发展大厦都能提供全方位的支持。

关于本站

选址,本该简单。办公选址靠谱网站首选 wisoffice.cn

wisoffice.cn 信息专业简单,只给选址企业可决策的信息:真实在租价格与面积一目了然;让你花更少花时间,选到更对的办公室。

wisoffice.cn 汇集了最新的商办行业租赁房源信息,最靠谱的经纪人。他们的从业经验普遍在 10 年以上,熟悉各类园区与楼宇的租赁政策与流程,能为企业提供专业的选址建议与服务。

wisoffice.cn 汇集了最有诚意的甲方。他们会为客户提供最大限度的价格优惠与支持,帮助企业节省租赁成本,提升办公体验。

商务合作 / 如何入驻wisoffice.cn

for 园区/楼宇方

  • 加速去化,全网种草
  • 整合招商,渠道营销

for 经纪人/代理行

  • 全网获客,经纪人的AI获客助手
  • 全域房源,行业伙伴助力高效成交

详情咨询

微信 gouwuhan