工位不够,团队扩容就换地

📍 SOHO尚都北塔 · 北京 · 朝阳区CBD国贸光华路 · XHS
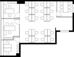
238平办公空间 灵活布局 20工位不拥挤 高效空间利用 团队扩容不换地
238平办公空间,能装20个工位,还能灵活隔断。市场不相信情怀,只认性价比。你要问我为啥推荐,其实很简单。这个空间利用率高,团队扩容不用换地,省下搬迁成本和麻烦。交通方便,6号线东大桥站步行就到,员工通勤不折腾。24小时空调,加班也不怕闷。办公空间能花多少钱,老板自己心里要有数。这种布局适合成长型公司,不用频繁搬家。你们公司现在多少人?明年计划扩到多少人?

项目全景 · SOHO尚都北塔

"#$%SOHO尚都北塔,作为北京朝阳区的一座重要商业地标,自2007年竣工以来,便以其独特的地理位置和现代化设计吸引了众多关注。这座由北京建华置地有限公司开发、港铁(北京)房地产管理有限公司负责物业管理的建筑,总建筑面积达17万平方米,容积率为7.70。 SOHO尚都的定位是集时尚、个性于一体的高档购物场所,分为西塔、南塔和北塔三个区域。最初,开发商承诺开业率在95%以上,但实际开业率不到40%,导致商户与开发商之间产生了纠纷。尽管如此,SOHO尚都依然在努力提升人气,商户们集体要求开发商履行承诺,加大商场的推广力度。 SOHO尚都北塔的设计灵感源自现代都市的活力与动感,建筑风格前卫,内部空间布局合理,每层办公区域采光充足,视野开阔。项目内部设有多个高端商务公寓、餐饮区和零售商铺,从高端时尚到休闲娱乐,应有尽有。 SOHO尚都北塔的地理位置优越,紧邻地铁2号线和6号线交汇站——朝阳门站,步行仅需几分钟即可到达,极大地方便了员工的日常通勤。此外,项目周边还有多条公交线路经过,形成了四通八达的公共交通网络。 尽管SOHO尚都北塔在经营初期面临了一些挑战,但凭借其独特的地理位置和现代化的设计,逐渐成为了商务精英的理想栖息地,吸引了众多企业与时尚人士的青睐

核心亮点

  • 238平办公空间
  • 灵活布局
  • 20工位不拥挤
  • 高效空间利用
  • 团队扩容不换地

基础参数

参考面积
238平
参考租金
18500元/月
楼宇/楼栋
SOHO尚都北塔
地址
北京市朝阳区

关键词

#SOHO尚都北塔#北京#朝阳区写字楼#CBD国贸光华路写字楼#企业选址#写字楼#职场#办公室#灵活办公#工位布局#团队扩容#高效办公

* 页面信息仅供参考,最终以现场勘察与商务条款为准;提交需求可获取《可租清单》《楼层平面图》《报价单》与政策补贴匹配结果。

北京SOHO尚都北塔的常见问题与介绍

  • Q:SOHO尚都北塔属于什么类型的商业项目?

    SOHO尚都北塔是位于北京朝阳区的一座重要商业地标,定位为集时尚、个性于一体的高档购物场所。该项目由北京建华置地有限公司开发,港铁(北京)房地产管理有限公司负责物业管理,总建筑面积达17万平方米。SOHO尚都北塔不仅包含高端商务公寓,还设有餐饮区和零售商铺,从高端时尚到休闲娱乐一应俱全,体现了现代化商业综合体的特色。尽管初期面临一些挑战,但其独特的地理位置和前卫设计使其逐渐成为商务精英和时尚人士的理想选择。

  • Q:SOHO尚都北塔的地理位置和交通情况如何?

    SOHO尚都北塔位于北京朝阳区的核心地带,地理位置极为优越。紧邻地铁2号线和6号线的交汇站——朝阳门站,步行仅需几分钟即可到达,极大地方便了员工的日常通勤。此外,项目周边还覆盖多条公交线路,形成了四通八达的公共交通网络。这种便捷的交通条件不仅提升了SOHO尚都北塔的商务价值,也使其成为吸引企业和时尚人士的重要因素。总的来说,SOHO尚都北塔的区位和交通优势为其在激烈的市场竞争中增添了显著亮点。

  • Q:SOHO尚都北塔的建筑设计和内部空间有何亮点?

    SOHO尚都北塔的建筑设计灵感源自现代都市的活力与动感,风格前卫,极具辨识度。内部空间布局合理,每层办公区域都享有充足的采光和开阔的视野,营造出高效舒适的办公环境。项目不仅设有多个高端商务公寓,还配备了多样化的餐饮区和零售商铺,满足从高端时尚到休闲娱乐的全方位需求。这种人性化的设计理念和高标准的空间规划,使得SOHO尚都北塔在提升用户体验的同时,也彰显了其作为高端商业项目的独特魅力。

  • Q:SOHO尚都北塔适合哪些企业和人群入驻?

    SOHO尚都北塔凭借其优越的地理位置、现代化的建筑设计和完善的配套设施,非常适合各类企业和高端商务人士入驻。尤其是那些追求时尚、注重办公环境和交通便利性的公司,如跨国企业、创意设计公司和高科技企业等。此外,项目内的高端商务公寓也吸引了众多商务精英和时尚人士居住。尽管初期面临一些经营挑战,但SOHO尚都北塔凭借其独特优势,逐渐成为商务和时尚圈的热门选择,展现出强大的市场潜力。

  • Q:SOHO尚都北塔的配套设施和服务有哪些?

    SOHO尚都北塔在配套设施和服务方面表现出色,项目内部设有多个高端商务公寓,提供舒适的居住环境。餐饮区和零售商铺种类丰富,从高端时尚品牌到休闲娱乐设施一应俱全,满足多样化的消费需求。此外,项目还注重提供优质的物业管理服务,确保入驻企业和住客的日常需求得到高效满足。这些完善的配套设施和服务,不仅提升了SOHO尚都北塔的整体品质,也为其在激烈的市场竞争中赢得了良好的口碑,成为商务和时尚人士的理想选择。

关于本站

选址,本该简单。办公选址靠谱网站首选 wisoffice.cn

wisoffice.cn 信息专业简单,只给选址企业可决策的信息:真实在租价格与面积一目了然;让你花更少花时间,选到更对的办公室。

wisoffice.cn 汇集了最新的商办行业租赁房源信息,最靠谱的经纪人。他们的从业经验普遍在 10 年以上,熟悉各类园区与楼宇的租赁政策与流程,能为企业提供专业的选址建议与服务。

wisoffice.cn 汇集了最有诚意的甲方。他们会为客户提供最大限度的价格优惠与支持,帮助企业节省租赁成本,提升办公体验。

商务合作 / 如何入驻wisoffice.cn

for 园区/楼宇方

  • 加速去化,全网种草
  • 整合招商,渠道营销

for 经纪人/代理行

  • 全网获客,经纪人的AI获客助手
  • 全域房源,行业伙伴助力高效成交

详情咨询

微信 gouwuhan