真房|蓝堡国际 |149平|高效空间,团队协作神器?

📍 蓝堡国际中心 · 北京 · 海淀 · XHS
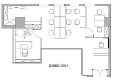
2个到顶功能间+8工位+储藏间 全新装修 拎包办公 户型方正 隔音美观
蓝堡国际中心,位于北京朝阳区的CBD商圈,紧邻长安街,与现代城隔街相望,国贸、嘉里近在咫尺。这149平米的空间,可不是一般的办公场所。2个到顶功能间,独立且私密,适合高层会议或专注工作;8个标准员工工位,布局合理,团队协作无障碍;还有储藏间,杂物归置,办公环境更整洁。 全新装修,全齐办公家具,拎包就能办公,省时省力。到顶隔断设计,不仅隔音效果好,还美观大方。楼层内配备高端商务餐厅、健身房、咖啡厅及多功能会议中心,工作生活两不误。 蓝堡国际中心由北京建华时代房地产有限公司开发,2003年竣工,是CBD商圈内同期项目中首个交付使用的。这里不仅是现代化高端办公楼,还集商业、酒店功能于一体,周边国际品牌零售、餐饮娱乐设施齐全,为企业提供一站式服务。 2009年,美吉姆儿童早教中心在此开业,见证了资本的起伏。如今,这里依然是商务活动最密集的区域之一,选择这里,不仅是选了个办公地点,更是选了个商业生态圈。 高效空间利用,提升团队协作,这不仅仅是句口号,这里是蓝堡国际中心,等你来验证。

项目全景 · 蓝堡国际中心

"#$%蓝堡国际中心位于北京市朝阳区西大望路3号,大望桥西北侧100米,属于CBD商圈,紧邻长安街,与现代城隔街相望,与国贸、嘉里距离不到一公里,是北京商务活动最密集的区域之一。 蓝堡国际中心由北京建华时代房地产有限公司开发,总建筑面积约3万平方米,规划控高100米,共27层,追求产品在建筑空间角度的创新。该中心于2002年9月开盘,2003年6月25日竣工,是CBD商圈内同期开发项目中第一个完工并交付使用的项目。 2009年2月14日,西方情人节,北京朝阳区蓝堡国际中心内,一家叫美吉姆的儿童早教中心开业。美吉姆的故事始于2003年,金宝贝早教机构传入中国并迅速扩展。美吉姆与资本的结缘始于2018年,教育部发布了民办教育促进法实施条例(修订草案)的征求意见稿,美吉姆借此机会迅速扩展,最终选择了三垒股份作为合作伙伴,但后来因疫情等因素导致业绩大幅下滑,最终资不抵债退市。 蓝堡国际中心不仅是一个现代化的高端办公楼,还包含商业、酒店等多种功能,是集高端商业、办公、酒店于一体的综合性商业建筑。项目内设有高端商务餐厅、健身房、咖啡厅及多功能会议中心,周边汇聚了众多国际品牌零售、餐饮娱乐设施,为企业客户提供了一站式的生活服务。 蓝堡国际中心的开发商北京建华时代房地产有限公司在项目开发过程中,通过资金周转和合理的规划,成功完成了项目,证明了团队的实力和项目管理的成功

核心亮点

  • 2个到顶功能间+8工位+储藏间
  • 全新装修
  • 拎包办公
  • 户型方正
  • 隔音美观

基础参数

参考面积
149平米
参考租金
详询经纪人
楼宇/楼栋
蓝堡国际中心
地址
地铁1号14线大望路站

关键词

#蓝堡国际中心#北京#朝阳#CBD#高效办公#团队协作#企业选址#写字楼#拎包办公#商务中心

* 页面信息仅供参考,最终以现场勘察与商务条款为准;提交需求可获取《可租清单》《楼层平面图》《报价单》与政策补贴匹配结果。

北京蓝堡国际中心的常见问题与介绍

  • Q:蓝堡国际中心属于什么类型的商业项目?

    蓝堡国际中心位于北京市朝阳区西大望路,属于CBD商圈的核心地带,是一个集高端商业、办公、酒店于一体的综合性商业建筑。该项目由北京建华时代房地产有限公司开发,总建筑面积约3万平方米,共27层,追求建筑空间角度的创新。蓝堡国际中心的多元化功能布局,使其不仅是一个现代化的高端办公楼,还包含了商业和酒店等多种业态,为企业客户提供了一站式的生活服务,体现了其在商业地产领域的综合实力和高端定位。

  • Q:蓝堡国际中心的地理位置和交通情况如何?

    蓝堡国际中心位于北京市朝阳区西大望路3号,紧邻大望桥西北侧100米,处于CBD商圈的核心位置,与长安街相邻,与现代城隔街相望,距离国贸、嘉里中心不到一公里。这一地理位置使其成为北京商务活动最密集的区域之一。周边地铁和公交线路密集,交通便利性极高,极大地方便了入驻企业和员工的日常通勤,进一步提升了其作为高端商务办公地的吸引力。

  • Q:蓝堡国际中心的建筑设计与空间规划有何亮点?

    蓝堡国际中心由北京建华时代房地产有限公司开发,总建筑面积约3万平方米,规划控高100米,共27层,追求在建筑空间角度的创新。其建筑设计注重现代化与功能性的结合,空间规划合理,旨在为入驻企业提供高效、舒适的办公环境。作为CBD商圈内同期开发项目中第一个完工并交付使用的项目,蓝堡国际中心不仅在建筑速度上展现了高效,更在建筑质量和设计理念上体现了前瞻性和高端定位。

  • Q:蓝堡国际中心的配套设施与服务有哪些?

    蓝堡国际中心不仅是一个现代化的高端办公楼,还配备了丰富的商业和休闲设施。项目内设有高端商务餐厅、健身房、咖啡厅及多功能会议中心,能够满足入驻企业和员工的多样化需求。周边更是汇聚了众多国际品牌零售、餐饮娱乐设施,为企业客户提供了一站式的生活服务。这些完善的配套设施与服务,极大地提升了蓝堡国际中心的综合竞争力,使其成为高端商务办公的理想选择。

  • Q:蓝堡国际中心的历史与发展有何特别之处?

    蓝堡国际中心于2002年9月开盘,2003年6月25日竣工,是CBD商圈内同期开发项目中第一个完工并交付使用的项目,展现了其高效的项目管理和开发实力。2009年,美吉姆儿童早教中心在此开业,标志着其在商业多元化发展上的重要一步。尽管美吉姆后来因多种因素退市,但这一事件也反映了蓝堡国际中心在吸引优质商业资源方面的能力。开发商北京建华时代房地产有限公司通过资金周转和合理规划,成功完成了项目,证明了团队的实力和项目管理的成功,为蓝堡国际中心的长期发展奠定了坚实基础。

关于本站

选址,本该简单。办公选址靠谱网站首选 wisoffice.cn

wisoffice.cn 信息专业简单,只给选址企业可决策的信息:真实在租价格与面积一目了然;让你花更少花时间,选到更对的办公室。

wisoffice.cn 汇集了最新的商办行业租赁房源信息,最靠谱的经纪人。他们的从业经验普遍在 10 年以上,熟悉各类园区与楼宇的租赁政策与流程,能为企业提供专业的选址建议与服务。

wisoffice.cn 汇集了最有诚意的甲方。他们会为客户提供最大限度的价格优惠与支持,帮助企业节省租赁成本,提升办公体验。

商务合作 / 如何入驻wisoffice.cn

for 园区/楼宇方

  • 加速去化,全网种草
  • 整合招商,渠道营销

for 经纪人/代理行

  • 全网获客,经纪人的AI获客助手
  • 全域房源,行业伙伴助力高效成交

详情咨询

微信 gouwuhan