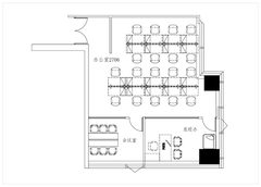
盈都大厦A座2706,精装18工位

📍 盈都大厦 · 北京 · 海淀区 · XHS
18工位+2隔断 精装修带家具 层高2.65米 24小时空调
最近,办公室选址成了打工人热议的话题,今天带大家看看盈都大厦A座2706。这间办公室18个工位+2隔断,精装修带家具,直接拎包入驻。层高2.65米,空间感十足,24小时空调,随时保持舒适温度。交通便利性更是没得说,地铁13/10号线知春路站B南口步行350米就到,简直是‘地铁口写字楼 = 公司离你近,生活离你远’的完美诠释。 盈都大厦可是由北京华远盈都房地产开发有限公司打造的综合性项目,地处中关村科技园区核心地段,北三环、北四环、中关村大街及学院路四大主干道围合的十字中心。占地2.2公顷,总建筑面积13.8万平方米,写字楼、商务公寓、商场一应俱全,各功能区间相互连通,共享屋顶花园和会所。工作累了,上去透透气,看看风景,心情瞬间up! 说实话,我第一眼看到这间办公室时,心里想的是‘好吧,明天搬家。’

项目全景 · 盈都大厦

盈都大厦位于北京市海淀区知春路中部,是北京华远盈都房地产开发有限公司开发的大型综合性项目,集写字楼、商务公寓、商场及相关配套于一体。该项目于2002年9月开工,2004年12月31日竣工,占地面积2.2公顷,总建筑面积13.8万平方米。 盈都大厦的历史和故事中,最引人注目的是其开发商新华远的故事。新华远的前身是华远地产,由某大pao(潘石屹)在离开老华远后与华润和万科合作创立。在开发盈都大厦之前,潘石屹还开发了酒仙桥丽都的海润公寓,并在北京地产界引起了广泛关注。 在入驻企业方面,盈都大厦引入了沃尔玛,成为其商业面积的重要租户。2004年,华远地产与沃尔玛正式签订租约,沃尔玛租赁了盈都大厦地下一层和地上一二层,租约时间为15年,沃尔玛还有三次优先续签权,每次续签时间为5年。 盈都大厦的传奇故事还包括其作为北京首单类REITs(房地产投资信托基金)市场化退出的案例。2020年底,全球最大的不动产基金管理公司之一普洛斯成功收购了盈都大厦D座,这也是北京市首单类REITs市场化退出的案例。 此外,盈都大厦还吸引了众多知名企业入驻,如字节跳动公司在创业初期曾将办公地点设在这里。字节跳动创始人张一鸣在2012年创办字节跳动公司时,其办公地点就位于盈都大厦附近。 盈都大厦的八卦故事之一是,曾有传闻称,该项目地段是大pao(潘石屹)精心布局的,意在向其他北京开发商宣战,控制北京地产圈的主流通道。尽管这些传闻被调侃,但潘石屹确实在多个项目中展现了其商业策略和野心。 综上所述,盈都大厦不仅是一个重要的商业地产项目,其背后的历史和故事也充满了传奇色彩。

核心亮点

  • 18工位+2隔断
  • 精装修带家具
  • 层高2.65米
  • 24小时空调

基础参数

参考面积
约 100,000m²
参考租金
25609元(含物业)
楼宇/楼栋
盈都大厦
地址
北京市海淀区知春路甲48号-1

关键词

#盈都大厦#北京#海淀#中关村#科技园区#写字楼#办公室#精装修#拎包入驻#交通便利#地铁周边#企业选址#职场生活#办公环境

* 页面信息仅供参考,最终以现场勘察与商务条款为准;提交需求可获取《可租清单》《楼层平面图》《报价单》与政策补贴匹配结果。

北京盈都大厦的常见问题与介绍

  • Q:盈都大厦是什么类型的综合性项目?

    盈都大厦位于北京市海淀区知春路甲48号,是由北京华远盈都房地产开发有限公司开发的大型综合性项目。它集写字楼、商务公寓、商场及相关配套于一体,地处北三环、北四环、中关村大街及学院路四大城市主干道围合的“黄金十字”中心。这种多元化的功能配置和优越的地理位置,使得盈都大厦成为海淀区乃至北京市的重要商业地标,吸引了众多知名企业和高端商务人士的关注。

  • Q:盈都大厦的交通情况如何?

    盈都大厦的交通极为便捷,位于北三环、北四环、中关村大街及学院路四大城市主干道的交汇处,紧邻地铁13号线与10号线知春路站。这种得天独厚的交通优势,使得无论是自驾还是公共交通出行都非常方便,极大地提升了盈都大厦的商务价值和吸引力。对于需要频繁出行的企业和商务人士来说,盈都大厦无疑是一个理想的办公和居住选择。

  • Q:盈都大厦的历史和发展有哪些重要节点?

    盈都大厦的开发历史可以追溯到2002年9月,当时项目正式开工,计划于2004年12月31日竣工。建成后,吸引了包括沃尔玛在内的众多知名企业入驻,标志着华远地产开始涉足“持有物业”开发模式。2020年底,普洛斯成功收购盈都大厦D座,并计划进行更新改造,打造为融合办公、生活及商业配套的创新综合体。这些重要节点不仅展示了盈都大厦的发展历程,也体现了其在城市更新和商业地产领域的持续影响力。

  • Q:盈都大厦有哪些知名企业入驻?

    盈都大厦吸引了众多知名企业入驻,其中包括全球零售巨头沃尔玛,其租赁了盈都大厦地下一层和地上一二层的2.22万平方米商业面积。此外,永捷企业也将总部设于盈都大厦C座3单元12层,该公司是一家集合同能源管理、供暖节能技术服务等综合型企业。这些知名企业的入驻,不仅提升了盈都大厦的商业氛围,也进一步证明了其在高端商务领域的吸引力和价值。

  • Q:盈都大厦在施工和环保方面有哪些亮点?

    盈都大厦在施工和环保方面表现突出,2021年除夕前取得施工许可证,并在施工过程中严格执行环保标准,确保材料质量和环保要求。项目最终顺利通过联合验收,展示了高效的管理和环保理念。这种对环保和施工质量的高标准要求,不仅提升了盈都大厦的建筑品质,也体现了开发商对社会责任的重视,为入驻企业和居民提供了一个安全、健康的工作和生活环境。

关于本站

选址,本该简单。办公选址靠谱网站首选 wisoffice.cn

wisoffice.cn 信息专业简单,只给选址企业可决策的信息:真实在租价格与面积一目了然;让你花更少花时间,选到更对的办公室。

wisoffice.cn 汇集了最新的商办行业租赁房源信息,最靠谱的经纪人。他们的从业经验普遍在 10 年以上,熟悉各类园区与楼宇的租赁政策与流程,能为企业提供专业的选址建议与服务。

wisoffice.cn 汇集了最有诚意的甲方。他们会为客户提供最大限度的价格优惠与支持,帮助企业节省租赁成本,提升办公体验。

商务合作 / 如何入驻wisoffice.cn

for 园区/楼宇方

  • 加速去化,全网种草
  • 整合招商,渠道营销

for 经纪人/代理行

  • 全网获客,经纪人的AI获客助手
  • 全域房源,行业伙伴助力高效成交

详情咨询

微信 gouwuhan